EasyManua.ls Logo

Siemens SINUMERIK 840DE SL - Page 74

Siemens SINUMERIK 840DE SL
112 pages
Print Icon
To Next Page IconTo Next Page
To Next Page IconTo Next Page
To Previous Page IconTo Previous Page
To Previous Page IconTo Previous Page
Loading...
Connecting
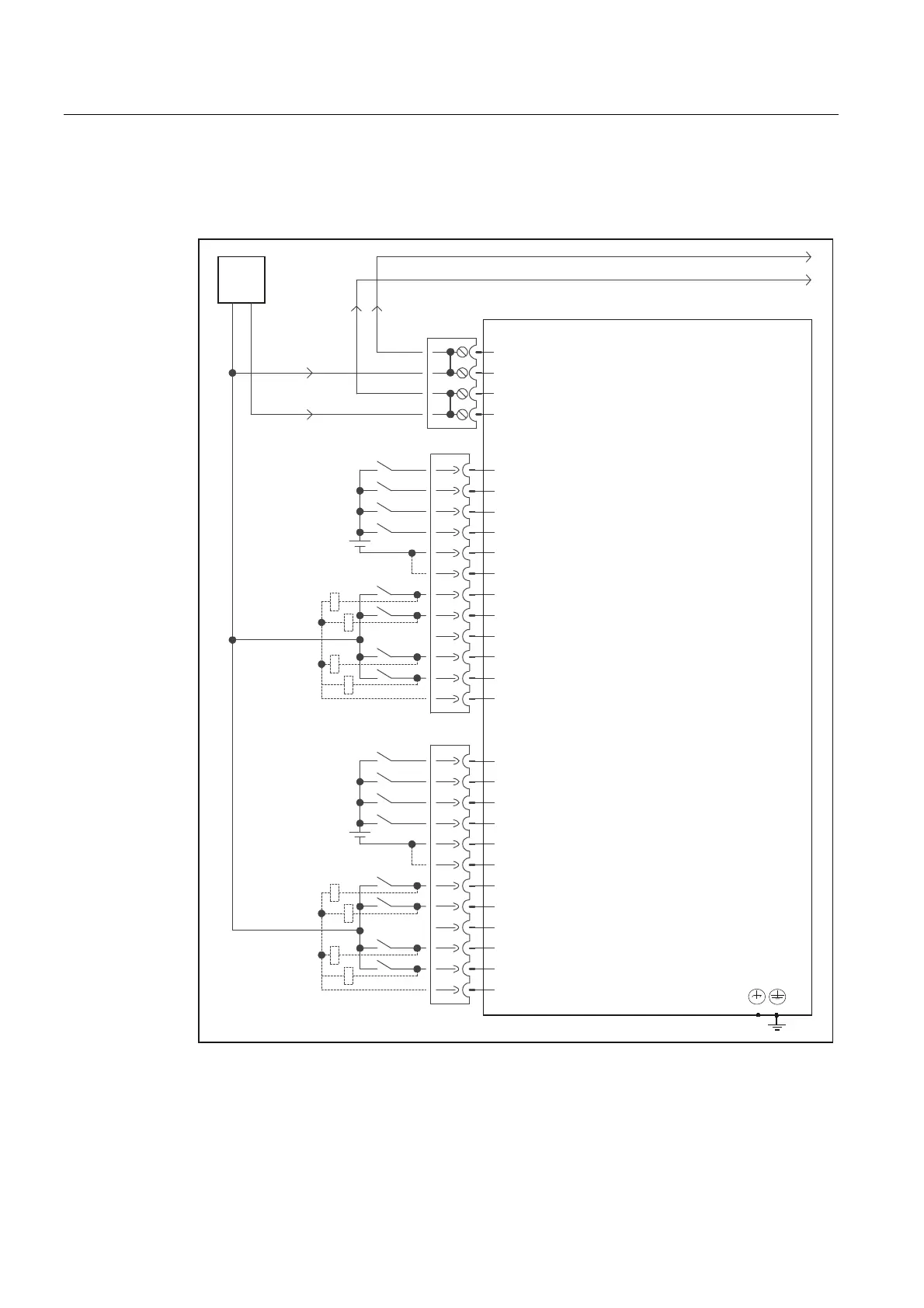
7.9 Digital inputs/outputs
NCU 7x0.2
74 Manual, 02/2011, 6FC5397-0AP20-0BA0
Block diagram
The following figure shows the block diagram for the digital inputs/outputs of a control unit.
H[W
9
1XPHULFDO&RQWURO8QLW1&8
+LJKVSHHGLQSXWVRXWSXWV
PXVWEHVKLHOGHG
-XPSHURSHQHOHFWULFDOLVRODWLRQ
IRU
GLJLWDOLQSXWV',
&DQEHSDUDPHWHUL]HGDV
LQSXWRXWSXW
0
0




',
;
',
',
',
0
0
','2



','2
','2
','2
0
0
',
;
',
',
',
0
0
','2



','2
','2
','2
0
0
9
0
;
0
0
0
Figure 7-14 Block diagram for digital inputs/outputs

Table of Contents

Other manuals for Siemens SINUMERIK 840DE SL

Related product manuals