EasyManua.ls Logo

Siemens X204-2FM - Page 79

Siemens X204-2FM
87 pages
To Next Page IconTo Next Page
To Next Page IconTo Next Page
To Previous Page IconTo Previous Page
To Previous Page IconTo Previous Page
Loading...
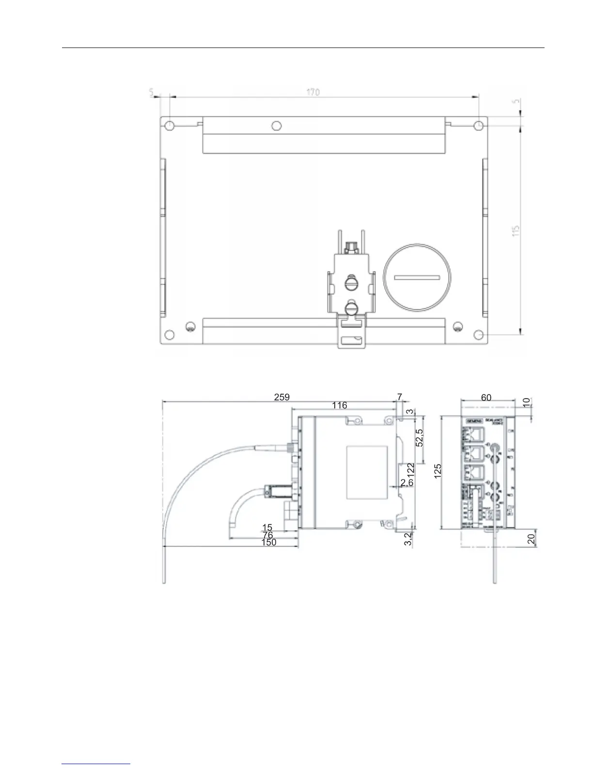
Dimension drawings
SCALANCE X-200
Operating Instructions, 03/2015, C79000-G8976-C284-06
79
Figure A-3 Drilling pattern SCALANCE X224
Figure A-4 Side view SCALANCE X-200

Related product manuals