EasyManua.ls Logo

SIMAG SP 125 - Page 39

SIMAG SP 125
44 pages
Print Icon
To Next Page IconTo Next Page
To Next Page IconTo Next Page
To Previous Page IconTo Previous Page
To Previous Page IconTo Previous Page
Loading...
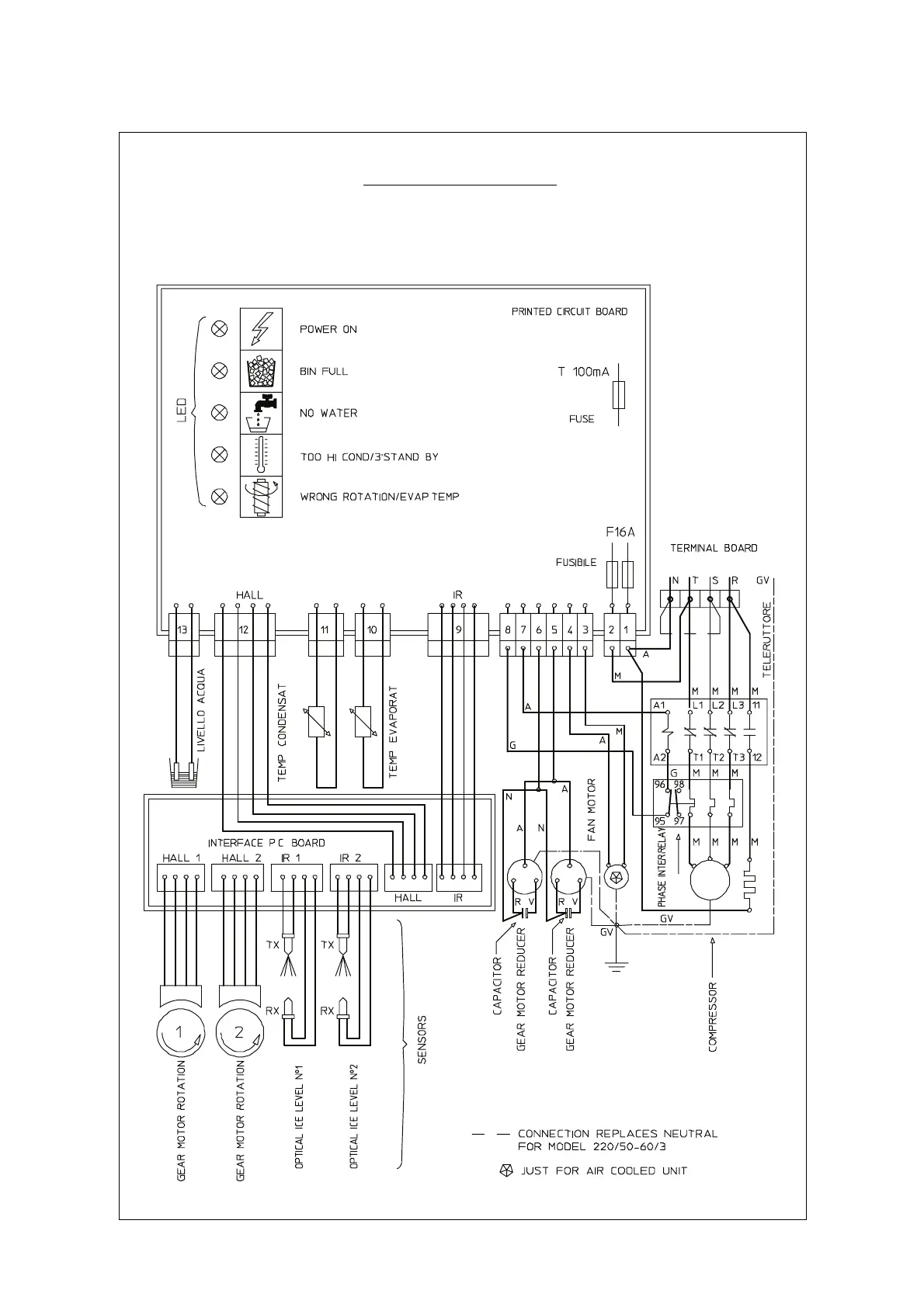
WIRING DIAGRAM SPN 1205
AIR AND WATER COOLED
THREE PHASE
Page 38
GV - YELLOW GREEN
B - WHITE
G - GREY
N - BLACK
A - BLUE
M - BROWN
V - GREEN

Related product manuals