EasyManua.ls Logo

Simar FX 2004 - Mixing Valve Construction; Mixing Valve Piping Connection

Default Icon
41 pages
Print Icon
To Next Page IconTo Next Page
To Next Page IconTo Next Page
To Previous Page IconTo Previous Page
To Previous Page IconTo Previous Page
Loading...
Page 16 / 26
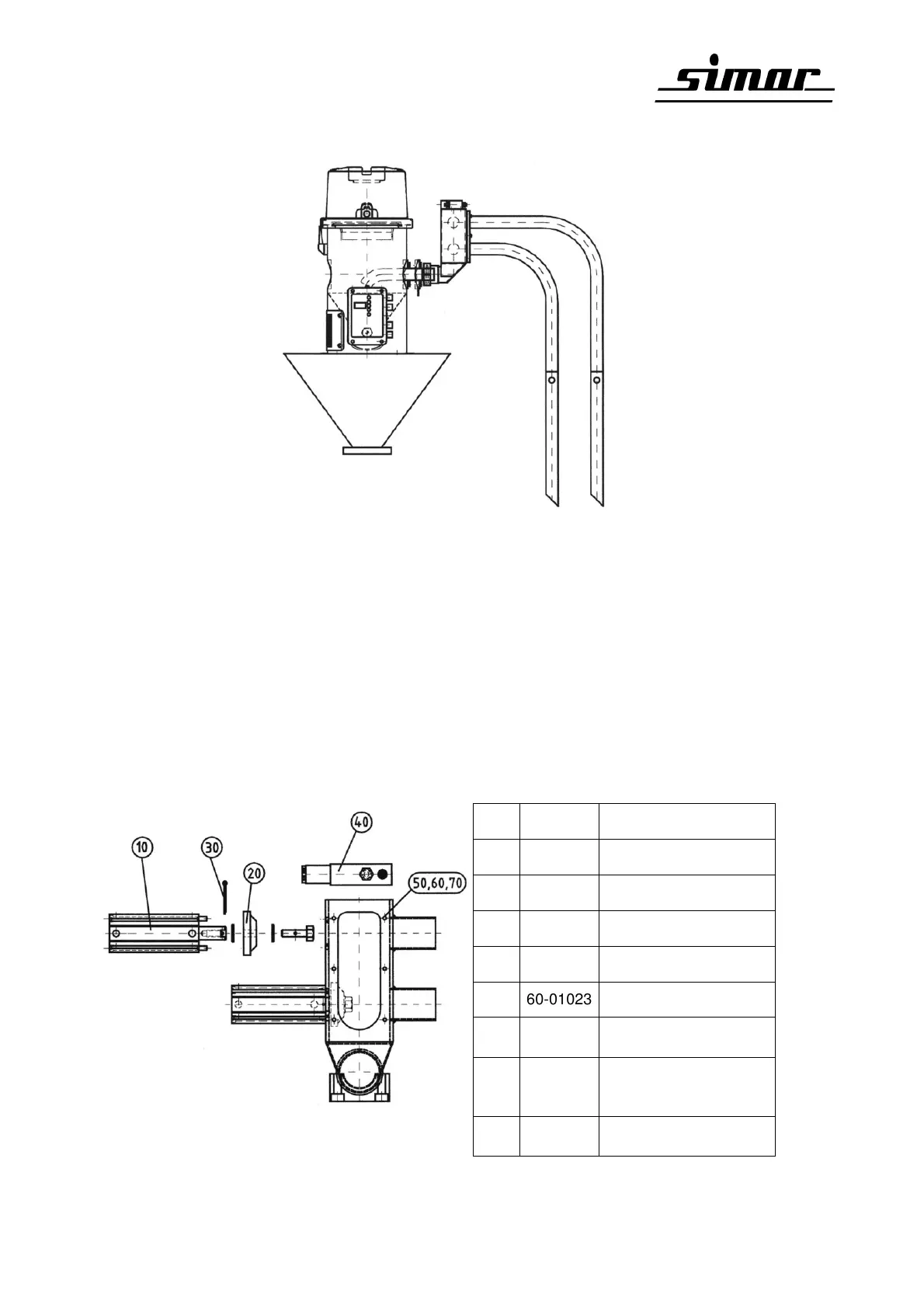
Construction
Assembly
Normally the mixing valve is delivered assembled ready for operation, together
with hopper loader.
If added to existing hopper loader please observe separate mounting instructions.
Connection of the conveyor piping
Make sure that both pipes are of approximately the same length.
The number of pipe bends shall also be the same.
If not appropriate allowance, which have to be determined by test, have to be
set when setting the percentages.
Pos
Art.- no.
Mixing valve
10 60-11005
Cylinder
20 10-38003
Valve disk MZX 38
o.20
10-38005
Valve disk MZX 50
30 59-30004
Split pin
40 60-01023
Solenoid valve 24V
50 87-00026
Flat sealing SBR
MZX 38/50
60 93-00095
Cover plate
plexiglass for
MZX 38/50
70 98-00094
Distance bush for
MZX 38/50 Al
60-01028