EasyManua.ls Logo

Sime Open.zip 25 BF TS - Page 37

Sime Open.zip 25 BF TS
Print Icon
To Next Page IconTo Next Page
To Next Page IconTo Next Page
To Previous Page IconTo Previous Page
To Previous Page IconTo Previous Page
Loading...
dera y a las distintas tipologías de modalidad
de evacua
ción
, véase la fig. 8/a.
2.8 CONEXION ELECTRICA
Para la alimentación eléctrica, que deberá
ser efectuada con tensión monofásica
230V-50Hz, utilizar el cable tripular sumi-
nistrado con la caldera que será conectado
a un interruptor general protegido por fusi-
bles con distancia entre los contactos de 3
mm. En caso de sustitución, dicho cable
deberá ser suministrado por SIME.
NOTA: El equipo debe ser conectado a una
instalación de puesta a tierra eficaz. SIME
declina toda responsabilidad por daños a
personas o cosas causados de la no ins-
talación de la toma de tierra de la caldera.
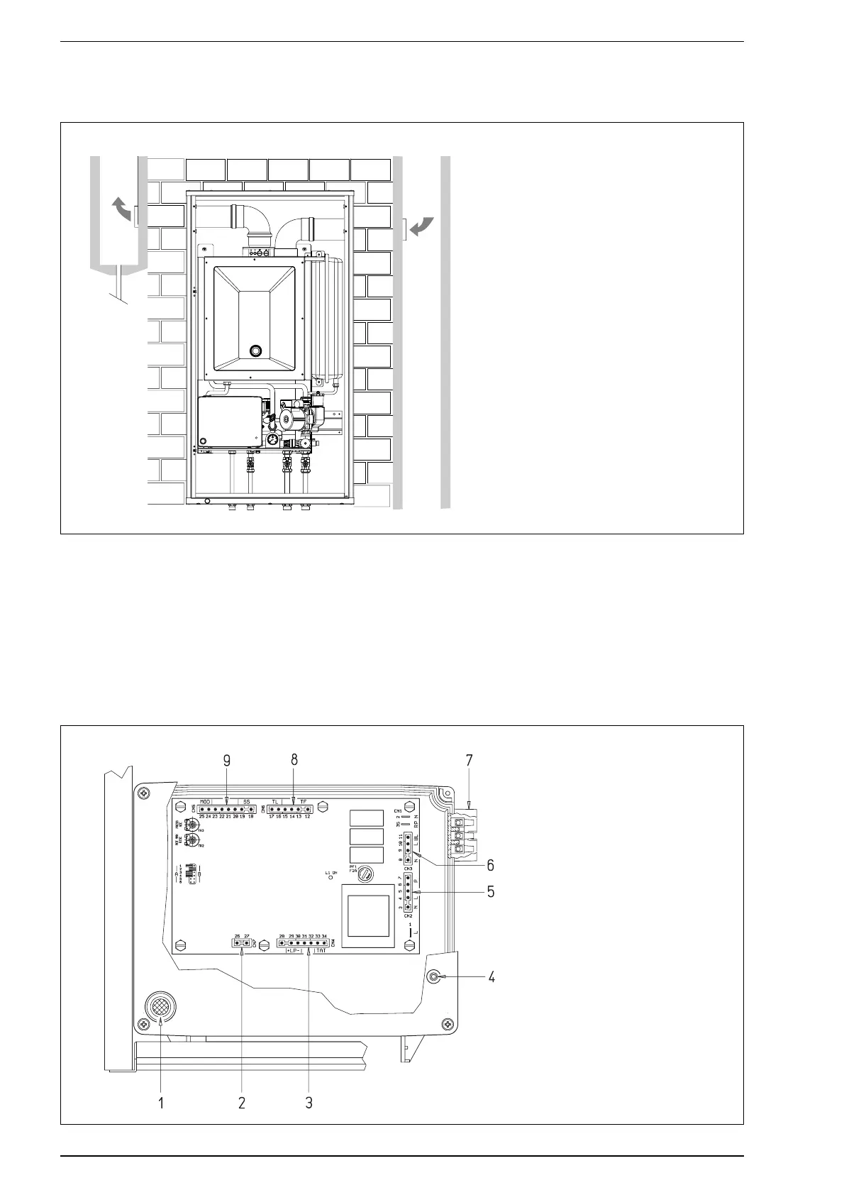
2.8.1 Cuadro eléctrico (fig. 9)
Para acceder al tablero eléctrico desconec-
te la alimentación eléctrica y destornillar los
tornillos que fijan la tapa a la caja que encie-
rra las conexiones.
El tablero puede ser inclinado hacia abajo
quitando los dos tornillos que lo bloquean al
bastidor.
35
scarico
condensa
LEYENDA
1 Pulsador desbloqueo
caja de control de llama
2 Conector cableado CN7
3 Conector cableado CN4
4 Indicador de falta agua
5 Conector cableado CN2
6 Conector cableado CN3
7 Conexión mando remoto
8 Conector cableado CN6
9 Conector cableado CN5
Fig. 9
TIPOLOGÍA DE EVACUACION
CONDUCTOS SEPARADOS
C12 Evacuación y aspiración de pared sometidos
a las mismas condiciones de viento. Si es
con conductos separadas, los terminales
tienen que ser inscritos en un cuadrado de
50 cm de lado.
C32 Evacuación y aspiración de techo sometidos
a las mismas condiciones de viento, pero
sólo con terminal de techo concéntrico
C42 Evacuación y aspiración en chimeneas comu-
nes separadas, pero sometidas a las
mismas condiciones de viento.
C52 Evacuación y aspiración de pared o de techo
separadas y, de todos modos, en zonas con
presión distinta, pero no sobre paredes
opuestas
C82 Evacuación en chimenea individual o común y
aspiración de pared.
Fig. 8/a
Descarga
de agua de
condensación

Table of Contents

Related product manuals