EasyManua.ls Logo

sinmag LBC LMO Max-E - GAS OVENS: SPECIFICATIONS; Installation Requirements; Water Quality Requirements; Utility Requirements

sinmag LBC LMO Max-E
42 pages
Print Icon
To Next Page IconTo Next Page
To Next Page IconTo Next Page
To Previous Page IconTo Previous Page
To Previous Page IconTo Previous Page
Loading...
© Copyright 2017-2022 LBC Bakery Equipment, Inc. 8 Rev 6/2022
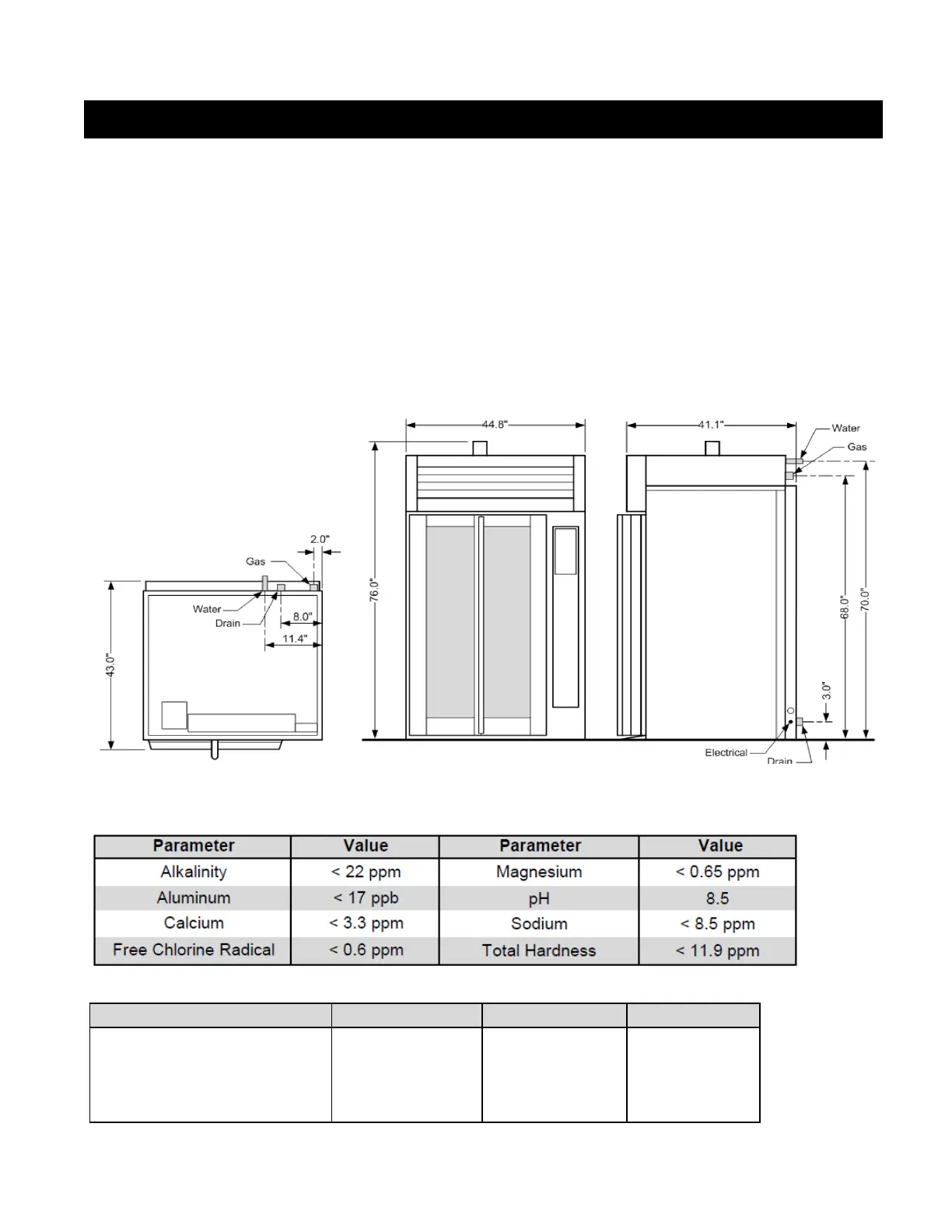
GAS OVENS: SPECIFICATIONS
.
Installation Requirements
Oven ships fully assembled and will fit through a 36door opening with removal of the oven door
assembly, valence and back panel.
Clearance to Combustibles: 1” from back and sides, 18” from top
Flooring: Appliance must be installed on a floor of noncombustible construction with
noncombustible flooring and surface finish and with no combustible material against the underside
thereof, or on noncombustible slabs or arches having no combustible material against the
underside. Such construction shall in all cases extend not less than 12” beyond the equipment on
all sides.
Water Quality Requirements
Utility Requirements
Electric
120V, 15A, 60Hz
dedicated circuit;
NEMA 5-15R
receptical required
Drain
Wate r
1/2"NPT,
cold water,
3 gph
@ 45 psi min
3/4"NPT,
route to
air gap drain

Related product manuals