EasyManua.ls Logo

Sinoboom GTJZ0608 - Page 36

Sinoboom GTJZ0608
37 pages
Print Icon
To Next Page IconTo Next Page
To Next Page IconTo Next Page
To Previous Page IconTo Previous Page
To Previous Page IconTo Previous Page
Loading...
34
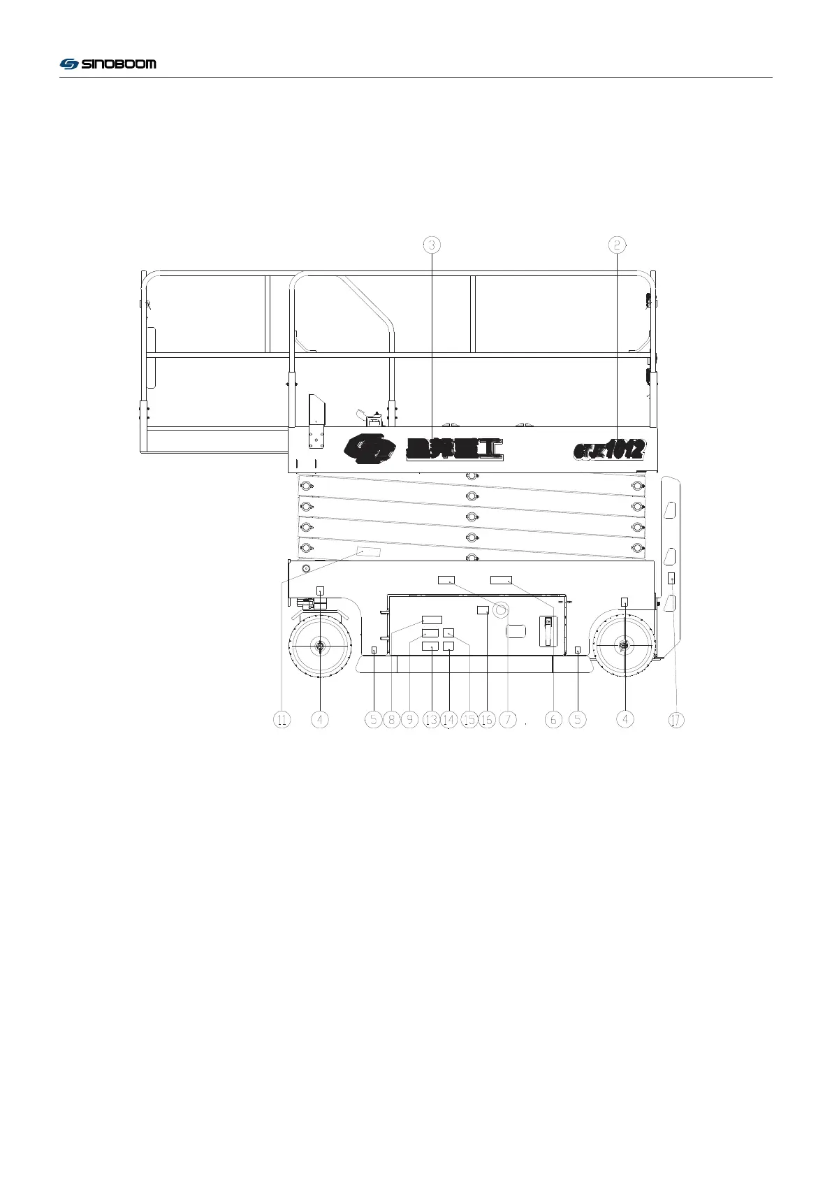
GTJZ0608 & GTJZ0808 & GTJZ1012 & GTJZ1212 & GTJZ0612 & GTJZ0812 Operation Manual

Related product manuals