EasyManua.ls Logo

Sirona C5+ Turn - Mounting Plates for Equipment with Swiveling Cuspidor (Not for C5 + Turn)

Sirona C5+ Turn
40 pages
Print Icon
To Next Page IconTo Next Page
To Next Page IconTo Next Page
To Previous Page IconTo Previous Page
To Previous Page IconTo Previous Page
Loading...
1 Preparations Sirona Dental Systems GmbH
Installation Requirements C5
+
, C5
+
Tur n
60 27 978 D3415
14 D3415.021.03.08.02
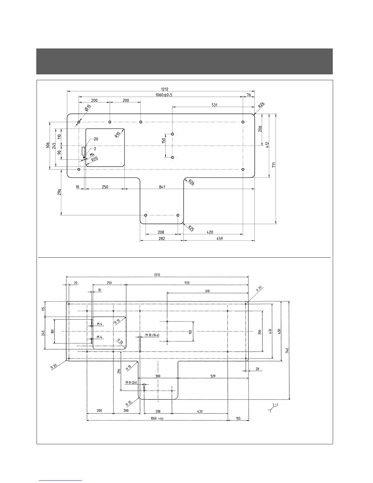
1.7 Mounting plates for equipment with swiveling
cuspidor (not for C5
+
Turn)
Mounting plate
Demonstration chair plate
REF 58 71 913
REF 58 66 301
For especially uneven floor conditions, a
steel mounting plate is available to com-
pensate for the irregularities of the floor
(REF 58 71 913).
For floors which do not permit permanent connection of the unit (e.g. demo operation at a fair),
installation on a steel demonstration chair plate is possible (REF 58 66 301).

Related product manuals