EasyManua.ls Logo

Sirona C5+ Turn - Page 20

Sirona C5+ Turn
40 pages
Print Icon
To Next Page IconTo Next Page
To Next Page IconTo Next Page
To Previous Page IconTo Previous Page
To Previous Page IconTo Previous Page
Loading...
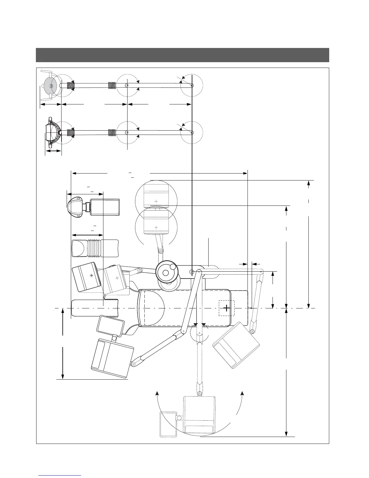
2 Dimensions, technical data Sirona Dental Systems GmbH
Installation Requirements C5
+
, C5
+
Tur n
60 27 978 D3415
20 D3415.021.03.08.02
180
7”
250
9 7/8”
750
29 1/2”
770
30 3/8”
45
1 3/4”
max.1500
59”
max. 1515
59 5/8"
180°
315°
max. 1200
47 1/4"
Option
Tray
ca. 830
32 5/8”
2070 +50**
81 1/2” +
2“ **
max. 1200
47 1/4"
440
17 3/8”
max. 380 +15
15“ +5/8”
430 +15
17“ +5/8”
Option
Support arm,
long
Option
Support arm,
short
Option
Swivellable
cuspidor
** according to chair height

Related product manuals