EasyManua.ls Logo

Skyjack SJ 3215 - Electrical Schematic (ANSI;CSA - Equipped with no Options)

Skyjack SJ 3215
114 pages
Print Icon
To Next Page IconTo Next Page
To Next Page IconTo Next Page
To Previous Page IconTo Previous Page
To Previous Page IconTo Previous Page
Loading...
SJIII Compact Series
143909
SKYJACK, Page 28
A B C D E F G H
V
Z
Y
X
W
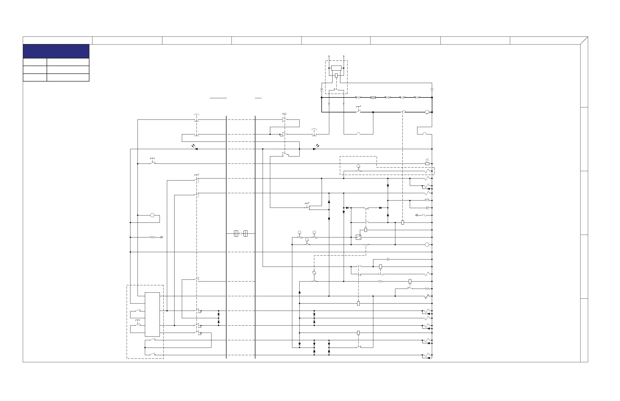
3.21b Electrical Schematic (ANSI/CSA - equipped with no options)
M147371AB
SWITCH N.C. (3215 ONLY)
DECELERATION LIMIT
SOLENOID (3215 ONLY)
DECELERATION
D13
38
19
LS5
7271
LS4
2H-59
RST2
49
POWER ON LED
HORN
HORN
H1
49
7A
7A
8C
07
NCHO
NO
NCHO
10E
8C
(IN IDLE POSITION)
IDLE/PLTF/BASE
KEY SWITCH
S10
5A
7A
POWER ON LIGHT
LED-2
02
05
07
7A
STOP
SWITCH
S28
EMERGENCY
5A
60
49
08
ENABLE
FWD/UP
02
02
02
8A
B
A
12B
13
14
18
15
16
S3
(IN LIFT POSITION)
LIFT/DRV LOW/DRV HI
JOYSTICK PCB
08
NCHO
NCHO
7B
NO
NOHC
B
A
NOHC
7A
08
S4
EMERGENCY
STOP
49
7A
07
BATTERY CHARGE
S8
HORN
SWITCH
08
S7
JOYSTICK
PWM
00
2.7K OHMS
RST1
BCI
INDICATOR
V
02
14
13
60
59
A
02
18
59
15
24
23
RIGHT
12B
REV/DN
S7-2
LEFT
S7-3
B
23
16
D16-1
D15-1
24
07
8C
8C
S7-1
NUETRAL
OUTPUT
GREEN
BLUE/WHITE
RED/WHITE
BLUE/BLACK
BLACK/WHITE
BLUE
WHITE/BLACK
ORANGE/BLACK
RED/BLACK
WHITE
CRD3CRD1 CRD2
BLACK
ORANGE
RED
GREEN/WHITE
POWER ON/LSS
LIGHT
LED-1
02
60
02
S7-6
ENABLE
NCHO
8A
PUMP MOTOR
24V
CONTROL BOX BASE
24V CHARGER
2
-
1
NEGATIV
CHARGER
DCM1
3
00
BATTERY
PACK
4
M 5
6
7
15A CIRCUIT
DOWN SOLENOID
HOLDING VALVE
UP SOLENOID
0.47uF CAPACITOR
TILT SWITCH
MOTOR CONTACTOR
TILT SWITCH
1000uF CAPACITOR
CUSHION SOLENOID
CUSHION RELAY
PROPORTIONAL
PROPORTIONAL
REVERSE SOLENOID
TRANSFER RELAY
FORWARD SOLENOID
STEER RELAY
BRAKE SOLENOID
RIGHT SOLENOID
LEFT SOLENOID
28
LS6
71
07
13
14
10E
02
D14-1
D28A
3A
CB2
03
14
13
13
14E
D14E
19
D14
28A
8
9
BREAKER
0200
CB1
12
10
11
2H-13-1
DO2-1
13
29
15
13
2H-13
14
3H-14
29
17
CAP2
16
BEEPER
BP-29
RST3
D14E-1
19
28 28CR
19 19A
TS119
19
19A
LS1B
LS1A
21
17A
17C7A
17D
21
D19A
19A
19A
RELAY
20
18
0200
19
HOURMETER
21
22
19A
TT
59A
21ACR
CAP1
17CCR
59
25
21A
25
24
23
26
2H-25
27
RELAY
17
17
17
D17
D17-1
59
16
15
71
23
24
59
D15
D16
17CR1
17
59
D23 D23-1
D24 D24-1
5959D
17CR
17
DO2-2
29
30
SOLENOID
33
32
3H-17
4H-16
31
4H-15
DO2-3
DO2-4
DO2-5
34
4H-23
35
36
4H-24
37
2H-13A
LS7
13A
13
B4 6V
BATTERY
LOW VOLTAGE
PROTECTION
15A CIRCUIT
BREAKER
S2
UP/DOWN
SWITCH
HIGH SPEED
LIMIT SWITCHES N.C.
DRIVE OVERRIDE
LIMIT SWITCH N.C.
C1
MOTOR
CONTACTOR
B2 6V
BATTERY
B3 6V
BATTERY
B1 6V
BATTERY
S1 MAIN
DISCONNECT
BC
L1CR
CHARGER
CUTOUT RELAY
F1
300A
FUSE
110 VAC
LINE VOLTAGE
POTHOLE PROTECTION
LIMIT SWITCHES N.C.H.O.
Serial Breakdown
Reference Chart
Model Serial Number
SJ3 3215 10000610 & below
SJ3 3219 22020984 & below
AC

Table of Contents

Related product manuals