EasyManua.ls Logo

Skyjack SJ 3215 - Electrical Schematic (CE - Equipped with All Options)

Skyjack SJ 3215
114 pages
Print Icon
To Next Page IconTo Next Page
To Next Page IconTo Next Page
To Previous Page IconTo Previous Page
To Previous Page IconTo Previous Page
Loading...
SKYJACK, Page 31SJIII Compact Series
143909
A B C D E F G H
V
Z
Y
X
W
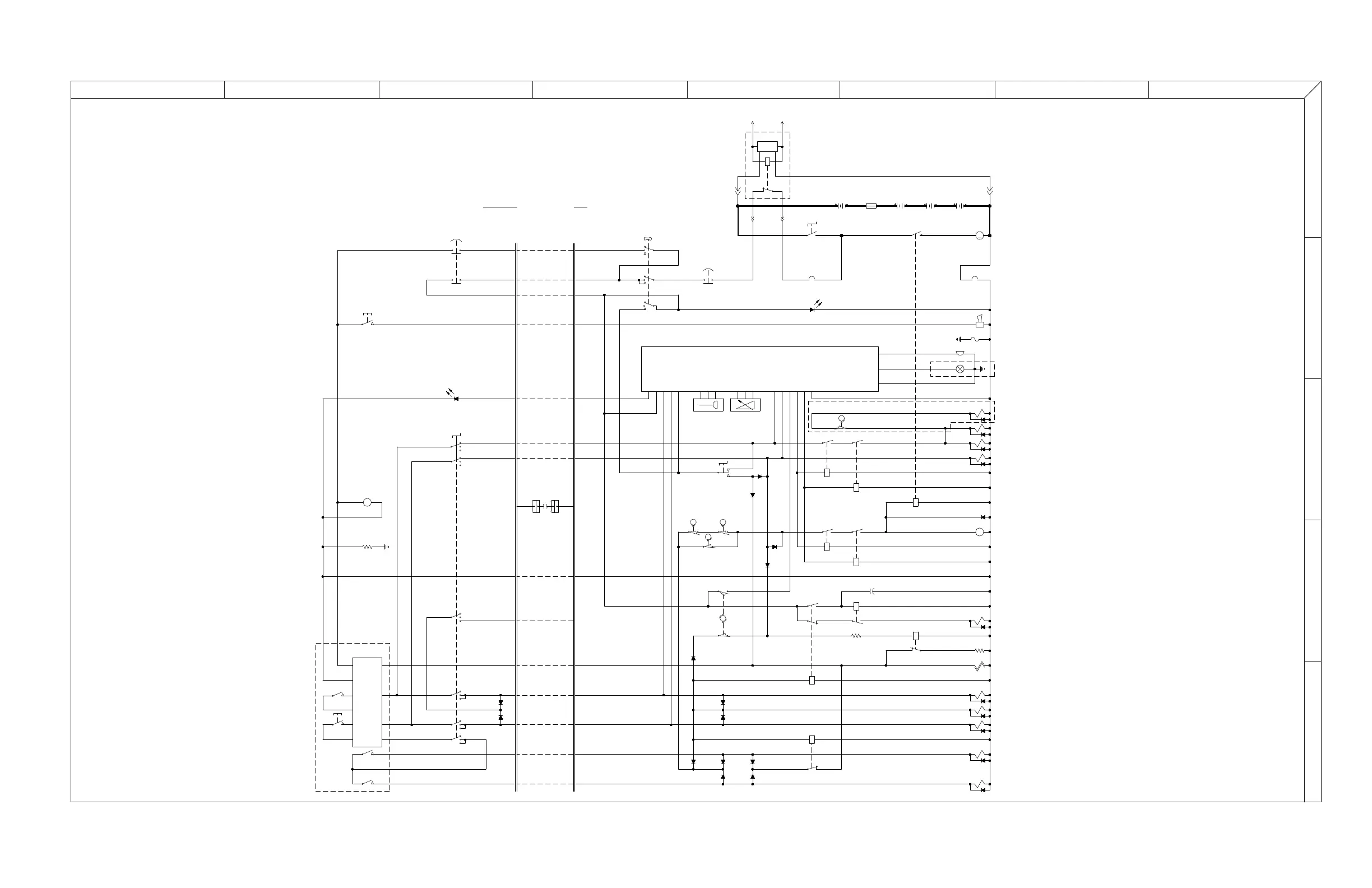
3.23 Electrical Schematic (CE - equipped with all options)
M147810AA
SWITCH N.C. (3215 ONLY)
DECELERATION LIMIT
DECELERATION
SOLENOID (3215 ONLY)
LIMIT SWITCH N.C.
HIGH SPEED
SWITCH
UP/DOWN
S2
LIMIT SWITCH N.C.
DRIVE OVERRIDE
BC
LINE VOLTAGE
110 VAC
BATTERY
B3 6V
CUTOUT RELAY
CHARGER
L1CR
DISCONNECT
MAINS1
FUSE
300A
F1
BATTERY
B4 6V
BATTERY
B2 6V
BATTERY
6VB1
CONTACTOR
MOTOR
C1
PROTECTION
LOW VOLTAGE
BREAKER
15A CIRCUIT
LIMIT SWITCHES N.C.H.O.
POTHOLE PROTECTION
TRANSDUCER
PRESSURE
PT1
TRANSDUCER
ANGLE
AT1
P2-12 = 7A
P3-3 = 60
P4-8 = 902
P4-6 = 910
P4-3 = 28B
P4-9 = 910A
P4-2 = 60A
P4-7 = 900
P2-11 = 02
LS7
13C
13B
2H-13C
DO2-1
42
LS4
71
LS5
72 19
2H-59
RST2
59
59A59
40
41
60
FL-22
BP-29
29
22
CB2
HORN
H1
49
HORN
49
POWER ON LED
7A
POWER ON LIGHT
LED-2
02
NO
10E
7A
8C
07
5A
07
NCHO
NCHO
07
8C
(IN IDLE POSITION)
IDLE/PLTF/BASE
KEY SWITCH
S10
05
STOP
SWITCH
S28
EMERGENCY
5A
02 60
49
08
ENABLE
FWD/UP
02
02
02
8A
B
A
12B
13
14
18
15
16
S3
(IN LIFT POSITION)
LIFT/DRV LOW/DRV HI
JOYSTICK PCB
08
NCHO
NCHO
7B
NO
NOHC
B
A
NOHC
7A
08
S4
EMERGENCY
STOP
49
7A
07
BATTERY CHARGE
S8
HORN
SWITCH
08
S7
JOYSTICK
PWM
00
2.7K OHMS
RST1
BCI
INDICATOR
V
02
14
13
60
59
A
02
18
59
15
24
23
RIGHT
12B
REV/DN
S7-2
LEFT
S7-3
B
23
16
D16-1
D15-1
24
07
8C
8C
S7-1
NUETRAL
OUTPUT
GREEN
BLUE/WHITE
RED/WHITE
BLUE/BLACK
BLACK/WHITE
BLUE
WHITE/BLACK
ORANGE/BLACK
RED/BLACK
WHITE
CRD3CRD1 CRD2
BLACK
ORANGE
RED
GREEN/WHITE
POWER ON/LSS
LIGHT
LED-1
60
02
S7-6
ENABLE
NCHO
8A
LEFT SOLENOID
RIGHT SOLENOID
39
38
4H-24
DO2-10
DO2-11
FORWARD SOLENOID
STEER RELAY
BRAKE SOLENOID
36
35
37
PROPORTIONAL
SOLENOID
32
REVERSE SOLENOID
TRANSFER RELAY
34
33
DO2-9
4H-16
DO2-8
4H-23
DO2-7
4H-15
3H-17
59
D24-1
D23-1
D24
D23
59D
17CR
17
17CR1
17
D16
59
D15
PROPORTIONAL
RELAY
CUSHION SOLENOID31
30
29
CUSHION RELAY
1000uF CAPACITOR
28
26
27
21A
21ACR
DO2-6
2H-25
AUX. TILT RELAY
HOURMETER
24
23
22 DOWN RELAY
MOTOR CONTACTOR
AUX. DOWN RELAY
20
19
21
19B
TT
19B
DO2-5
TILT RELAY
25
25
RST3
17D
CAP1
17C7A
21
21
D14-1
18B
28ECR1
19A
19B
19
28E
28
28E
28ECR2
28
D14-2
14E
D14E-2
D14E-1
28CR2
17CCR
28CR1
DOWN SOLENOID
16
UP SOLENOID
HOLDING VALVE
18
17
FLASHING LIGHT
OPTION
15
13
14
2H-13B
DO2-4
3H-14
2H-13B-1
DO2-2
DO2-3
BEEPER
12
10
11
15A CIRCUIT
7
6
BREAKER
8
9
00
00
CB1
02
02
13 13A 13B
P3-4 = 28
P3-1 = 22
P3-5 = 02
13
14
P2-4 = 13
P2-3 = 14
P2-10 = 18B
P3-6 = 28E
P3-2 = 29
03
3A
13
PUMP MOTOR
PACK
BATTERY
3
5
4
CHARGER
2
1
-
M
00
NEGATIV
DCM1
24V CHARGER
71
D17
24
17
17
17
16
59
15
23
17A
LS1
N.O.
7A
02
LS6
71
10E
P2-7 = 16
P2-8 = 15
P2-2 = 10E
14
13
7A
D17-1
24V
BASECONTROL BOX
19
MODULE
CM1
CONTROL

Table of Contents

Related product manuals