1.6
69
21
24
50
(1.97)
(0.954)
(0.83)
(2.72)
6,5
MOUNTING HOLES FOR M6x1
SCREWS (2 PLACES)
(0.25)
22
13
39
(1.54)
(0.87)
(0.51)
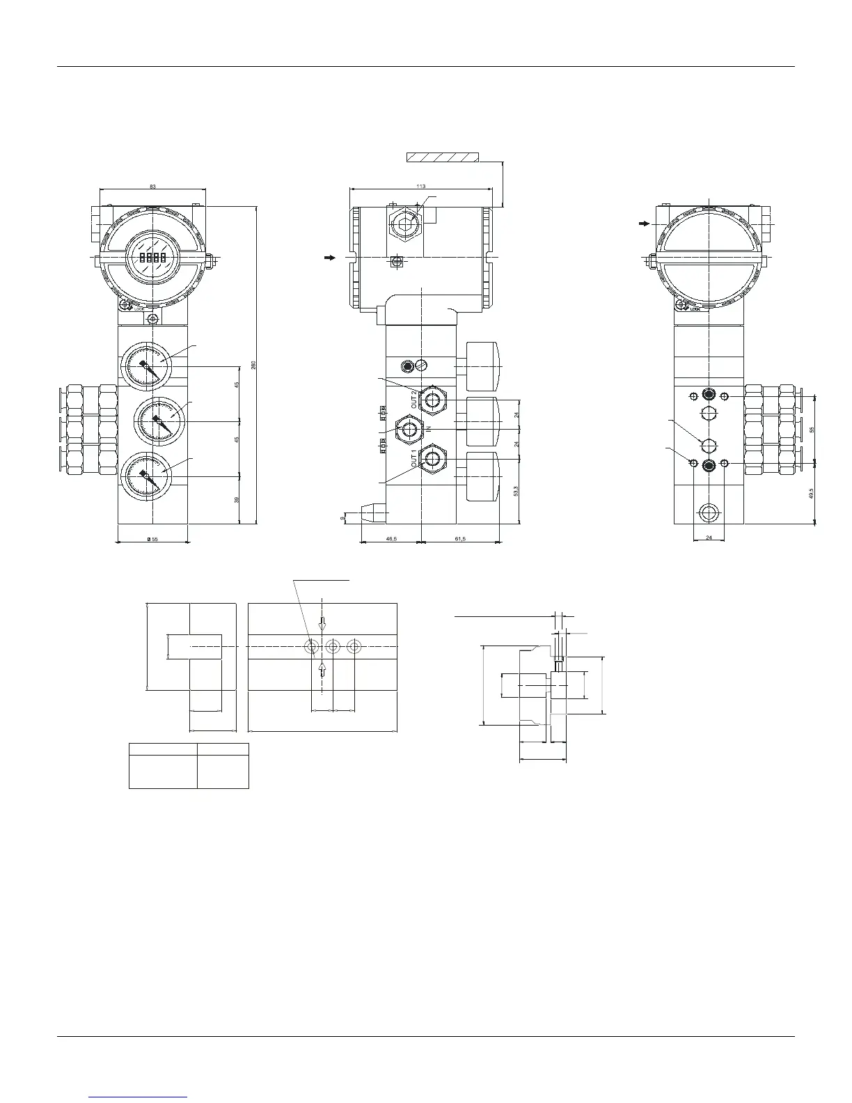
ROTARY MAGNET
VALVE POSITIONER
All dimensions are in mm (in)
THREADS FOR SCREWS
M6x1 (4 PLACES)
INPUT
PRESSURE
1/8-27 NPT
OUTPUT
PRESSURE 2
1/8-27 NPT
OUTPUT
PRESSURE 1
1/8-27 NPT
TERMINAL
WIRING
OUTPUT 2
1/4-18 NPT
Leave, at least, a 150mm (5.8 in) space,
for zero and span adjustments with the
magnetic tool.
INPUT
1/4-18 NPT
OUTPUT 1
1/4-18 NPT
EXHAUST
ORIFICES
ELECTRICAL
CONNECTION
SOCKET SET
PLUG
(3.27)
(10.24)
(1.77)(1.77)(1.77)
(1.53)
(2.17) (1.83)
(2.42)
(0.94)
(2.10) (0.94) (0.94)
(4.45)
(1.95) (2.17)
(0.35)
LINEAR MAGNET
TRAVEL DIMENSION A
Note: Dimensions in mm (in)
*ONLY FOR 50 AND 100 mm TRAVELS.
UP TO 100 mm (3.94)
UP TO 50 mm (1.97)
UP TO 15 mm (0.59)
UP TO 30 mm (1.18)
43 mm (1.7)
105 mm (4.13)
181 mm (7.12)
67 mm (2.64)
64.5
(2.54)
(0.71)
18
(0.89)
22.5
(1.30)
33
(0.59)
15
A
(2 PLACES)
15 *
(0.59)
HOLE 6.3 (0.25)Ø