EasyManua.ls Logo

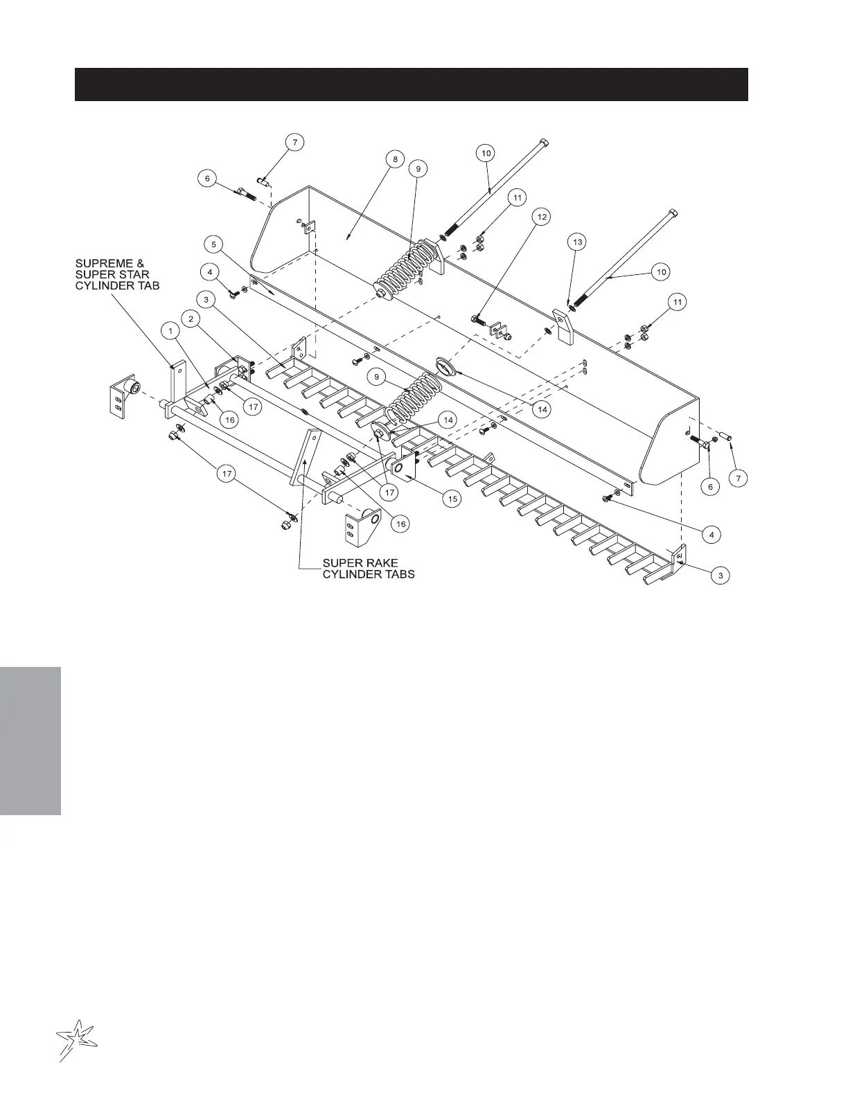
Smithco 13-550-C - 34-191 Box Grader Drawing

Default Icon
108 pages
Print Icon
To Next Page IconTo Next Page
To Next Page IconTo Next Page
To Previous Page IconTo Previous Page
To Previous Page IconTo Previous Page
Loading...
94
Accessories
34-191 BOX GRADER DRAWING

Related product manuals