EasyManua.ls Logo

Smithco 13-550-C - Hydraulic Sand Plow with Lift

Default Icon
108 pages
Print Icon
To Next Page IconTo Next Page
To Next Page IconTo Next Page
To Previous Page IconTo Previous Page
To Previous Page IconTo Previous Page
Loading...
54
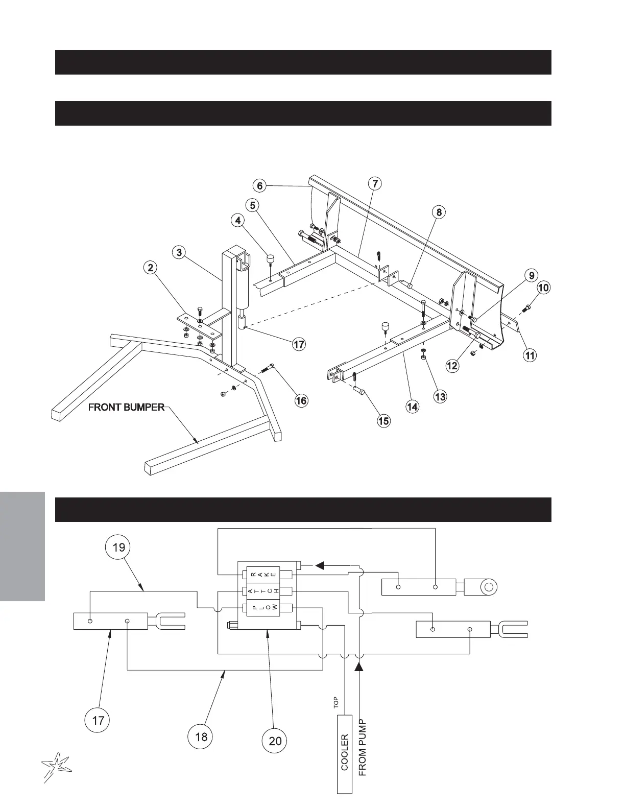
Accessories
13-413 HYDRAULIC SAND PLOW WITH LIFT DRAWING
(DEALER INSTALLED)
13-412 HYDRAULIC SAND PLOW WITH LIFT DRAWING
(FACTORY INSTALLED)
HYDRAULIC VALVE PLUMBING

Related product manuals