EasyManua.ls Logo

SMS SHZV - Page 9

SMS SHZV
87 pages
Print Icon
To Next Page IconTo Next Page
To Next Page IconTo Next Page
To Previous Page IconTo Previous Page
To Previous Page IconTo Previous Page
Loading...
HM0.460.3901
9
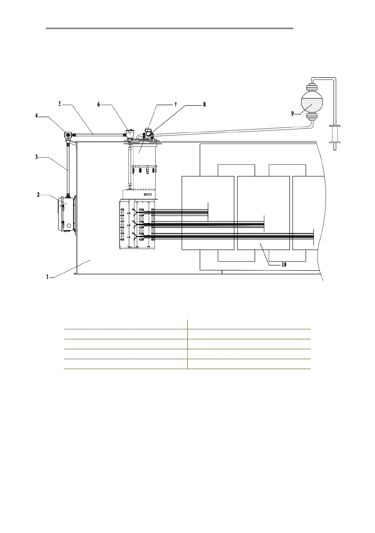
General view
Figure 2-1 Overview of tap-changer Cylinder Tap Selector inside transformer
1. Transformer tank
2. Motor drive unit
3. Vertical drive shaft
4. Bevel gear box
5. Horizontal drive shaft
6. Upper gear unit
7. Tap-changer
8. Protective relay
9. Oil conservator
10. Active part of the transformer
Ta
ble2-1 List of all parts

Table of Contents

Related product manuals