EasyManua.ls Logo

Snorkel SL20 - Snorkel SL20 Specifications; Component Identification

Snorkel SL20
50 pages
Print Icon
To Next Page IconTo Next Page
To Next Page IconTo Next Page
To Previous Page IconTo Previous Page
To Previous Page IconTo Previous Page
Loading...
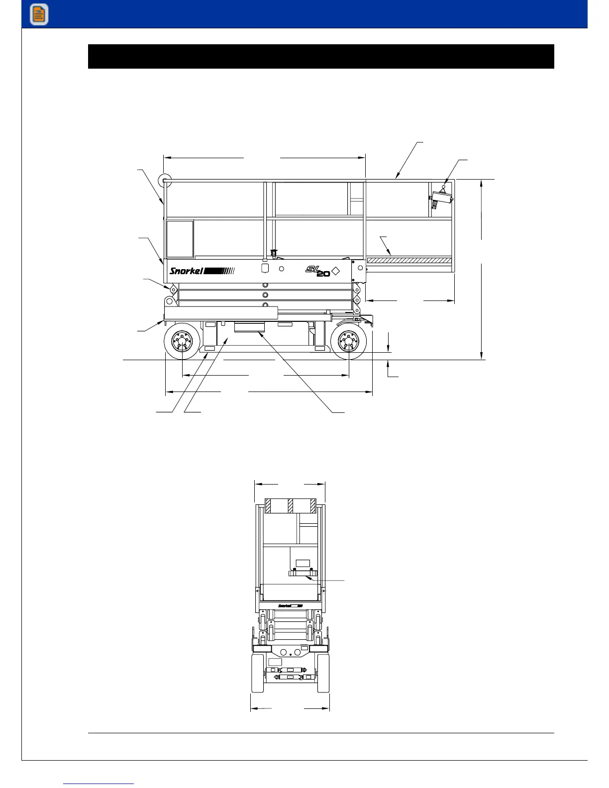
Chapter 2. Specifications
Component Identification
SL 20 – 300206 page 2 - 1
78.5 in
199.4 cm
90 in
228.6 cm
71 in
180.3 cm
91 in
231.1 cm
3.25 in - 8.3 cm Platform Lowered
0.75 in - 1.9 cm Platform Raised
Guardrails
Platform Extension
Upper Controls
Platform
Scissors
Structure
Chassis
Toeboards
36 in
91.4 cm
Front (Steer)
Hydraulic Tray (Right Side)
Battery Tray (Left Side)
Pothole
Protector Skid
Lower Controls
Rear
33 in
83.8 cm
30 in
76.2 cm
Operator’s
Manual Holder
View thousands of Crane Specifications on FreeCraneSpecs.com
View thousands of Crane Specifications on FreeCraneSpecs.com

Table of Contents

Related product manuals