EasyManua.ls Logo

Sony VPL-PX21 - Instalación en el Techo

Sony VPL-PX21
124 pages
Print Icon
To Next Page IconTo Next Page
To Next Page IconTo Next Page
To Previous Page IconTo Previous Page
To Previous Page IconTo Previous Page
Loading...
27 (ES)
;;;;;;;;;
;;;;;;;;;
;;;;;;;;;
;;;;;;;;;
;;;;;;;;;
a
x
b
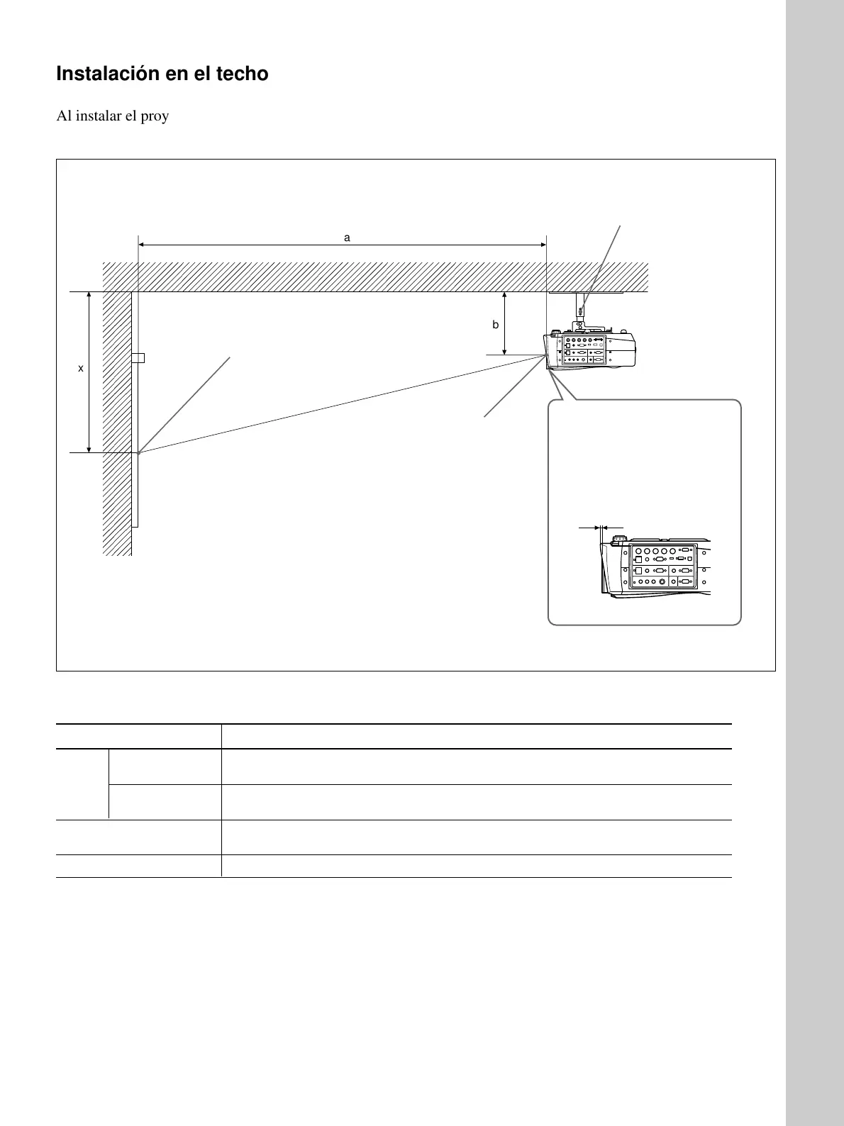
Instalación en el techo
Al instalar el proyector en el techo, utilice el soporte
de suspensión de proyector PSS-610.
a: Distancia entre la pantalla y el centro del objetivo
b: Distancia entre el techo y el centro del objetivo
x: Distancia entre el techo y el centro de la pantalla
Centro del objetivo
Tamaño de la pantalla
(pulgadas) 80 100 120 150 180 200 250 300
Mínimo
3060 3850 4630 5810 6990 7770 9740 11700
a
(120
1
/
2
) (151
5
/
8
) (182
3
/
8
) (228
7
/
8
) (275
1
/
4
) (306) (383
5
/
8
) (460
3
/
4
)
Máximo
3740 4700 5660 7100 8540 9500 11900 14300
(147
3
/
8
) (185
1
/
8
) (222
7
/
8
) (279
5
/
8
) (336
3
/
8
) (374
1
/
8
) (468
5
/
8
) (563
1
/
8
)
x
b+610 b+762 b+914 b+1143 b+1372 b+1524 b+1905 b+2286
(24) (30) (36) (45) (54) (60) (75
1
/
8
) (90
1
/
8
)
b 231/256/281/331/356/381 mm (
9
1
/
8
/10
1
/
8
/11
1
/
8
/13
1
/
8
/14
1
/
8
/15
pulgadas) ajustable al utilizar PSS-610
Pared
Soporte de suspensión de proyector
PSS-610 (no suministrado)
Techo
Unidad: mm (pulgadas)
Centro de la pantalla
Para realizar la instalación en el techo, consulte con
personal Sony especializado.
Para calcular las medidas de la instalación (unidad: mm)
SS: tamaño diagonal de la pantalla (pulgadas)
a (mínimo) = {(SS × 50,18/1,3102) 75,10104} × 1,025
a (máximo) = {(SS × 64,518746/1,3102) 107,8977} × 0,975
x = b + (SS/1,3102 × 9,984)
Distancia entre la parte
frontal de la unidad y el
centro del objetivo
Ejemplos de instalación
Instalación
Objetivo estándar: 10 mm
(
13
/32 pulgadas)

Table of Contents

Other manuals for Sony VPL-PX21

Related product manuals