EasyManua.ls Logo

SPX DSV - 6 Dimensions; Weights

SPX DSV
45 pages
Print Icon
To Next Page IconTo Next Page
To Next Page IconTo Next Page
To Previous Page IconTo Previous Page
To Previous Page IconTo Previous Page
Loading...
7
Double Seal Butterfly Valve
DSV
Operating manual: rev. 2
UK
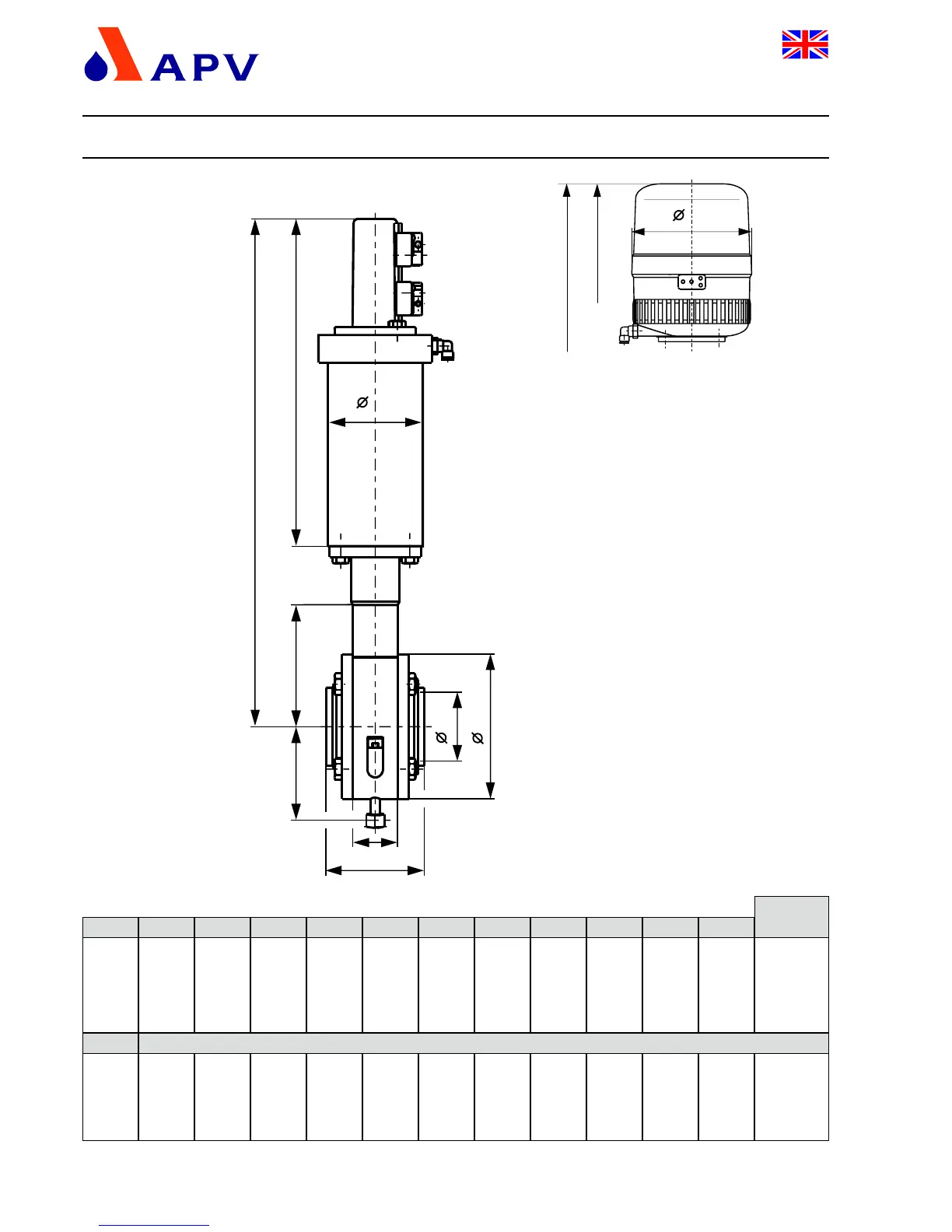
6. Dimensions / Weights
50
65
80
100
125
DN
F
50
66
81
100
125
86
86
89
89
101
85
95
108
119
133
464
474
556
567
581
337
337
386
386
386
108
130
146
166
205
dimensions in mm
weighs
in kg
85
85
125
125
125
Ø K
H1
D
K
C
E
F
B G
A
H
G
295
295
344
344
344
H
A1
H1
125
A1B
Ø C
A
inch
2”
2,5”
3”
4”
84
95
105
115
125
38
38
41
41
53
EØ D
422
432
514
525
539
47,8
60,5
72,1
97,6
86
86
89
89
85
95
108
119
464
474
487
567
337
337
386
386
108
130
146
166
85
85
125
125
295
295
344
344
84
95
105
115
38
38
41
41
422
432
465
525
DSV-UK2.qxp / 10.2005
www.sks-online.com
www.sks-webshop.com

Related product manuals