EasyManua.ls Logo

Stanley Dura-Glide 2000AG Series - Adjusting the SX Panel Emergency Egress Breakout Detents

Stanley Dura-Glide 2000AG Series
19 pages
To Next Page IconTo Next Page
To Next Page IconTo Next Page
To Previous Page IconTo Previous Page
To Previous Page IconTo Previous Page
Loading...
203729
Rev. E, 11/20/18
© 2018, THE STANLEY WORKS. ALL RIGHTS RESERVED. 13 of 18
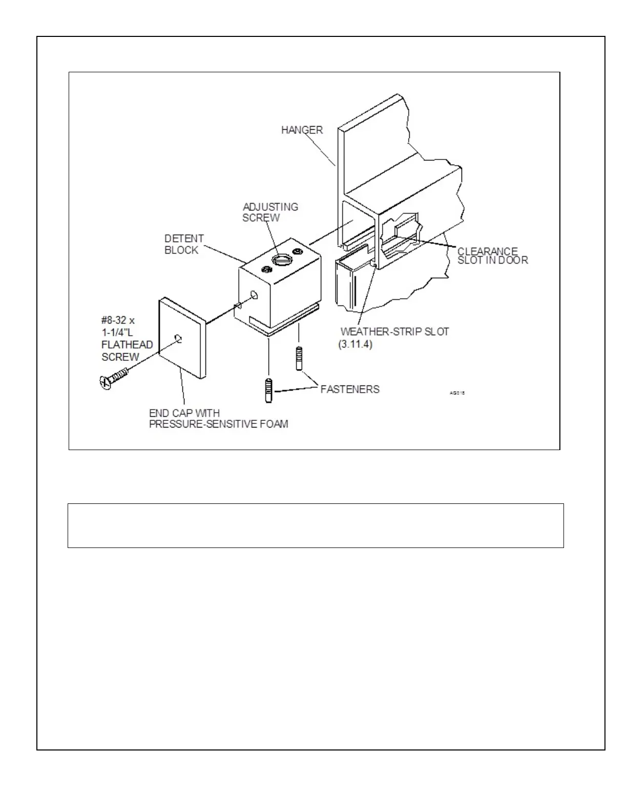
3.11.2 Refer To Figure 10, and LOOSEN two fasteners in bottom of detent block.
3.11.3 REMOVE end cap and detent block from hanger.
3.11.4 INSTALL weather-strips in exterior and interior channel of hanger and CUT weather-
strip to length.
NOTE
Turning adjusting screw clockwise increases the force required to break out door. Turning adjusting screw
counterclockwise decreases the force required to break out door.
3.11.5 TURN adjusting screw in top of detent block as necessary to ensure door will be tight.
3.11.6 SLIDE detent block and end cap into hanger, and ENSURE detent block is aligned with
clearance slot in door.
3.11.7 TIGHTEN two fasteners in bottom of detent block.
3.11.8 With "TOP" indication facing upward, POSITION end cap over hanger.
3.11.9 TIGHTEN fastener securing end cap to detent block.
3.11.10 APPLY pressure-sensitive foam to end cap.
Figure 10. Adjusting Emergency Egress Breakout Detents

Related product manuals