EasyManua.ls Logo

Startco SE-105 - Se-105

Startco SE-105
15 pages
Print Icon
To Next Page IconTo Next Page
To Next Page IconTo Next Page
To Previous Page IconTo Previous Page
To Previous Page IconTo Previous Page
Loading...
Startco Engineering Ltd. Page 3
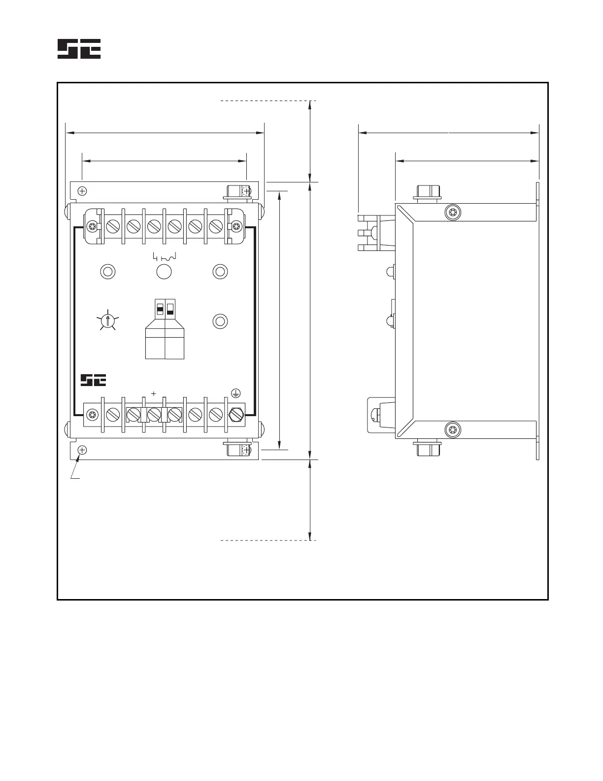
SE-105 Ground-Fault Ground-Check Monitor Rev. 9
Pub. SE-105-M, November 24, 2005.
F1
F2
109.0
(4.29)
88.9
(3.50)
139.7
(5.50)
150.0
(5.90)
4.8 (0.19) DIA
NOTES:
1. DIMENSIONS IN MILLIMETRES (INCHES).
2. TERMINAL-BLOCK SCREWS: 6-32 x 0.25.
3. MOUNTING SCREWS: M4 OR 8-32.
4. SHOWN WITH TERMINAL-BLOCK COVER REMOVED.
5. MINIMUM CLEARANCE FOR FUSE REMOVAL.
100.0
(3.93)
77.8
(3.06)
RESETGROUND
FAULT
GF TRIP
TIME (s)
POWER
GROUND
CHECK
CT1
CT2
AB
GICISW
L1
GC
L2
G
MODE
GF
0.1 2.0
1.0
4.0 A
2.0 A
0.5 A
SH
UV
STARTCO
ENGINEERING LTD.
GF-GC MONITOR
SE-105
43.5
(1.71)
43.5
(1.71)
NOTE 5
NOTE 5
NOTE 4
FIGURE 2. SE-105 Outline and Mounting Details.