EasyManua.ls Logo

STOVES Precision 1100DFa - Installation Instructions - Physical Setup; Moving the Cooker for Installation; Cooker Dimensions and Clearances

STOVES Precision 1100DFa
32 pages
Print Icon
To Next Page IconTo Next Page
To Next Page IconTo Next Page
To Previous Page IconTo Previous Page
To Previous Page IconTo Previous Page
Loading...
21
INSTALLATION INSTRUCTIONS
Before you start, please read the
instructions. Planning your installation
will save you time and effort.
Moving the cooker
Please note that the weight of this
appliance is approximately 9 5 k g
(unpacked). Take care if the
appliance needs to be lifted during
installation - always use an appropriate
method of lifting.
Do not attempt to move the cooker by
pulling on the doors or handles. Open
the door and grasp the frame of the
cooker, taking care that the door does
not shut on your fingers.
Take care to avoid damage to soft or
uneven floor coverings when moving
the appliance. Some cushioned vinyl
floor coverings may not be designed
to withstand sliding appliances without
marking or damage.
Cooker dimensions
All sizes are nominal, and some
variation is to be expected. The ‘depth’
of the cooker, as given below, is to the
front of the door and excluding knobs
and handles.
Height (adjustable) - with lid down /
models without lid; 900 - 915mm
Height (adjustable) - with lid up (if
fitted); 1430 - 1445mm
Width; 1100mm
Depth; 600mm
Whilst every care is taken to eliminate
burrs and raw edges from this product,
please take care when handling - we
recommend the use of protective
gloves during installation.
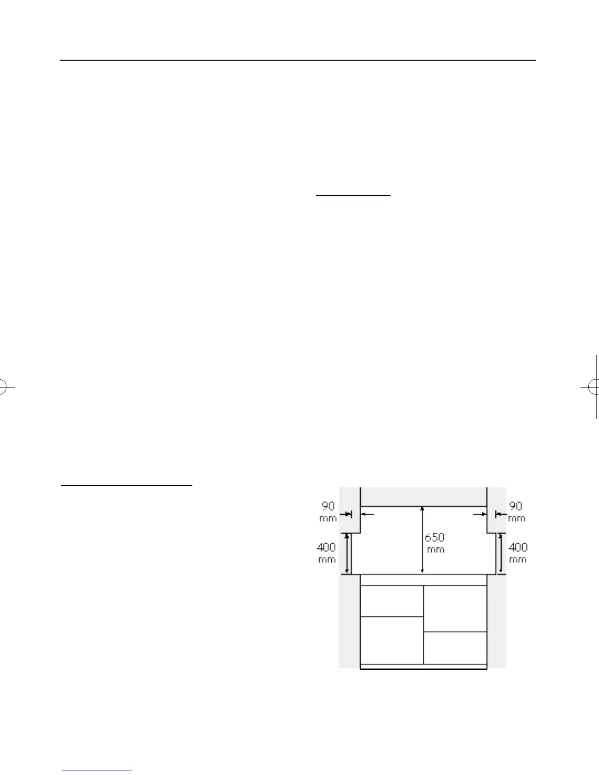
Clearances
No shelf or overhang or cooker hood
shall be closer than a minimum of
650mm, but check with cooker hood
manufacturer’s recommendations.
The cooker must have a side clearance
above hob level of 90mm up to a
height of 400mm.
This cooker may be fitted flush to
base units up to the front edge of the
side panels.
For models with side opening doors,
we recommend a side clearance of
60mm between the cooker and any
protruding side wall or cabinet, to
allow the door to open fully.
25211 03 - Precision 1100DFa 5/8/04 11:46 AM Page 23

Related product manuals