EasyManua.ls Logo

Sullair TS32-300 - Identification-Water-Cooled

Sullair TS32-300
80 pages
To Next Page IconTo Next Page
To Next Page IconTo Next Page
To Previous Page IconTo Previous Page
To Previous Page IconTo Previous Page
Loading...
TS32 USER MANUAL SECTION 3
32
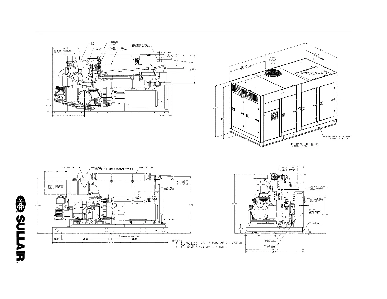
Figure 3-2: Identification—Water-Cooled
02250126-378 R03

Table of Contents

Related product manuals