EasyManua.ls Logo

Superior DRC2035 - Page 29

Superior DRC2035
76 pages
Print Icon
To Next Page IconTo Next Page
To Next Page IconTo Next Page
To Previous Page IconTo Previous Page
To Previous Page IconTo Previous Page
Loading...
Installation
900004-00, 04/2015
Innovative Hearth Products
Superior™ DRT2000 and DRC2000 Direct-Vent Gas Fireplaces
29
Install the Horizontal Termination Vent System
These instructions should be used as a guideline and do not supersede local codes in any way. Install venting
according to local codes, these instructions, the current National Fuel Gas Code (ANSI-Z223.1) in the USA or the
current standards of CAN/CGA-B149.1 in Canada.
Ensure clearances are in accordance with local installation codes and the requirements of the gas supplier.
Dégagement conforme aux codes d’installa tion locaux et aux exigences du foumisseunde gaz.
Horizontal vent systems terminate through an outside wall. Building Codes limit or prohibit terminating in
specific areas (Table 7).
The following figures and their associated horizontal vent tables illustrate the various configurations that are possible
for use with these fireplaces. Secure Vent
®
pipe is shown in these figures; Secure Flex
®
pipe may also be used.
A table summarizes each configuration’s minimum and maximum vertical and horizontal length parameters for a
variety of applications. For more information on connecting the vent pipe, see Page 22.
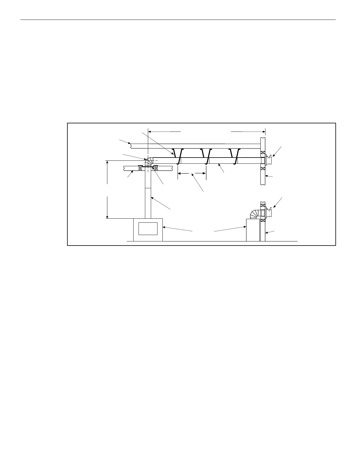
Figure 26: Typical Horizontal Vent Installation
V
ertical
Rise
SV4.5E90
Elbow
Horizontal / Inclined Run
Termination
Firestop/Spacer
SV4.5L6/12/24/36/48
Vent Sections
Support bracket spacing
every 5 ft (1.52 m)
Vertical Vent
Support
Brackets
Building
Support
Framing
Ceiling
Fireplace
Exterior
Wall
Exterior
Wall
Termination
1. Analyze the vent route and determine the number of vent sections and elbows required—See Effective Vent
Length on Page 22 for more information. Plan the venting so that a joint does not occur in the ceiling or roof
joists. Allow for elbows (Figure 18). Maintain the minimum clearances for combustibles (Page 24).
2. Frame the exterior wall opening—Locate the center of the vent outlet on the exterior wall (Table 11). Cut and/
or frame an opening, 10 1/2 x 12 1/8” (267 x 308 mm) inside dimensions, about this center.
3. Frame the ceiling opening—If the vertical route is to penetrate a ceiling, use plumb line to locate the center
above the fireplace. Cut and/or frame an opening, 10 1/2 x 10 1/2” (267 x 267 mm) inside dimensions, about
this center (Figure 20).
4. Install the rear vent gasket—The rear vent gasket is factory installed and required for all rear vent applications.
If the gasket is missing, position a replacement gasket (contact your local dealer) around the vent collar before
attaching other vent components to the fireplace (Figure 21). Loosely attach the gasket with two screws at the
top and bottom.
5. Attach the vent components to the fireplace—See Connecting the vent pipe on Page 22.
6. Attach the vent components to each other—See Connecting the vent pipe on Page 22.
7. Install the firestop/spacer at the ceiling—When using Secure Vent
®
, use SV4.5VF firestop/spacer at ceiling
joists; when using Secure Flex
®
, use SF4.5VF firestop/spacer. If there is living space above the ceiling level,
the firestop/ spacer must be installed on the bottom side of the ceiling. If attic space is above the ceiling, the
firestop/spacer must be installed on the top side of the joist. Route the vent sections through the framed opening
and secure the firestop/spacer with 8d nails or other appropriate fasteners at each corner.
Maintain 1” (25 mm) clearance to combustibles, framing members, and attic or ceiling insulation when running
vertical chimney sections.
8. Support the vertical run sections—On the vertical run, support the venting system every 8 ft (2.4 m) above the
fireplace vent outlet with field provided support straps (Plumber’s tape). Attach the straps to the vent pipe and
secure to the framing members with nails or screws (Figure 26).

Other manuals for Superior DRC2035

Related product manuals