EasyManua.ls Logo

SUPMEA P300 - Chapter 5 Wiring; DIN Connector Type

SUPMEA P300
30 pages
Print Icon
To Next Page IconTo Next Page
To Next Page IconTo Next Page
To Previous Page IconTo Previous Page
To Previous Page IconTo Previous Page
Loading...
Chapter 5 Wiring
www.supmea.com
10
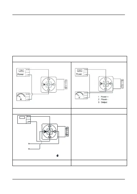
Chapter 5 Wiring
5.1 DIN connector type
Wiring of DIN connector type as follows:
P300/ P310/ P300G/PX300
Current output
Voltage output
Power
24V
485A
485B
1 Power +
2 Power -
3 RS485 A
RS485 B
RS485 output
RS485 output

Related product manuals