EasyManua.ls Logo

swaploader SL-214 - Subframe Critical Dimensions

swaploader SL-214
106 pages
Print Icon
To Next Page IconTo Next Page
To Next Page IconTo Next Page
To Previous Page IconTo Previous Page
To Previous Page IconTo Previous Page
Loading...
Section II: Installation
2.0.INS.SL
-
214
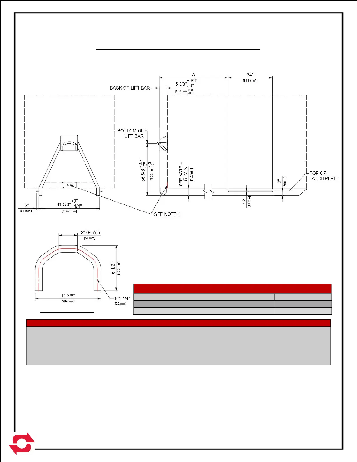
100 SERIES SUB-FRAME CRITICAL DIMENSIONS
LIFT BAR DETAIL
NOTE:
1. A STRUCTURAL JIB CONTACT POINT LOCATED AS LOW AS ALLOWABLE ON THE CONTAINER FRONT IS REQUIRED.
2. WELD HOOK GUARD TO BODY OR ADD STRUCTURAL SUPPORT AS NEEDED FOR THE APPLICATION.
3. THIS DRAWING PROVIDES THE CRITICAL SUB-FRAME DIMENSIONS FOR COMPATABILITY WITH THE SWAPLOADER
HOOK LIFT HOIST. IT IS THE SUB-FRAME SUPPLIER’S RESPONSIBILITY TO PROVIDE A SUB-FRAME OF SUFFICIENT
CAPACITY WHICH PROPERLY SUPPORTS THE BODY/CONTAINER WHEN USED WITH THE HOOK LIFT HOIST.
4. SWAPLOADER MANUFACTURED 100 SERIES A-FRAMES REQUIRE A 5 INCH LONGSILL HEIGHT.
100 SERIES SUB-FRAME DIMENSIONS
HOIST COMPATABILITY
A
SL-75/95/105 82 1/2” [2096 mm]
SL-145/160/180/185/212/214 95 1/2” [2418 mm]
2-16

Related product manuals