EasyManua.ls Logo

tau D703M - Page 32

tau D703M
Print Icon
To Next Page IconTo Next Page
To Next Page IconTo Next Page
To Previous Page IconTo Previous Page
To Previous Page IconTo Previous Page
Loading...
32
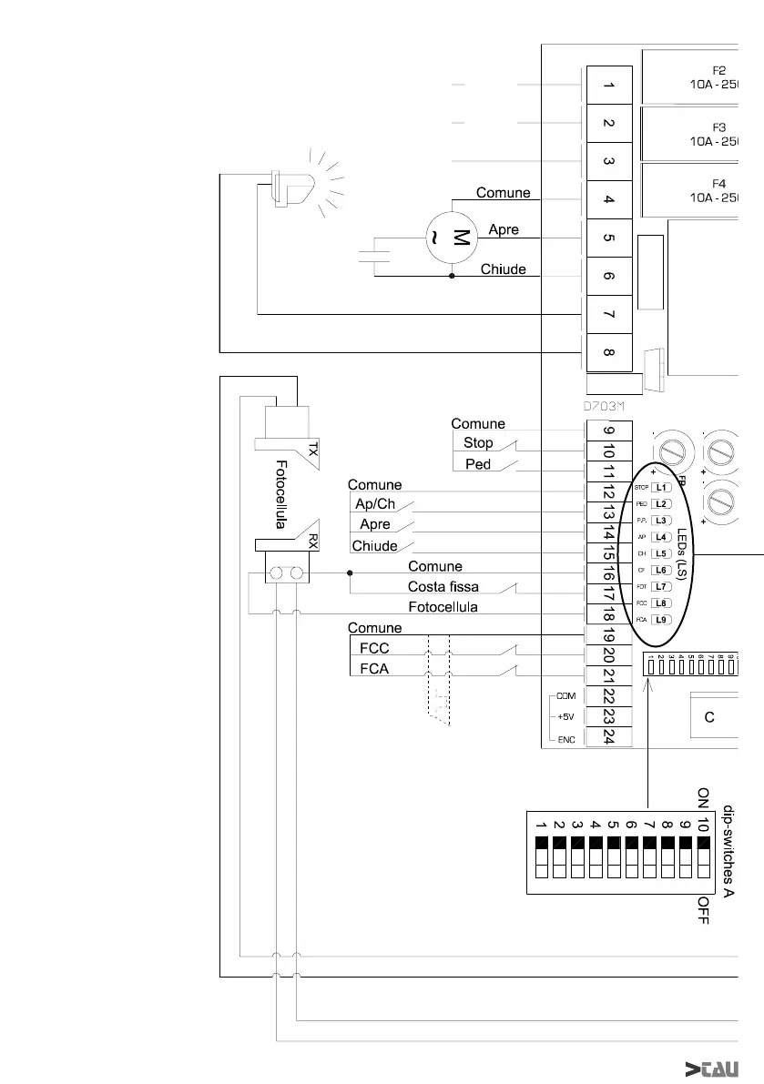
D703M
Pastiglia
termica
Master 20T
230Vac
Alimentazione
400Vac
Alimentazione
Lamp
220Vac
max 20W
Cond
12,5µF

Related product manuals