EasyManua.ls Logo

Tecnam P92 Echo MK2 - Page 22

Tecnam P92 Echo MK2
92 pages
Print Icon
To Next Page IconTo Next Page
To Next Page IconTo Next Page
To Previous Page IconTo Previous Page
To Previous Page IconTo Previous Page
Loading...
P92 LSA
Flight Manual
Rev.0
22
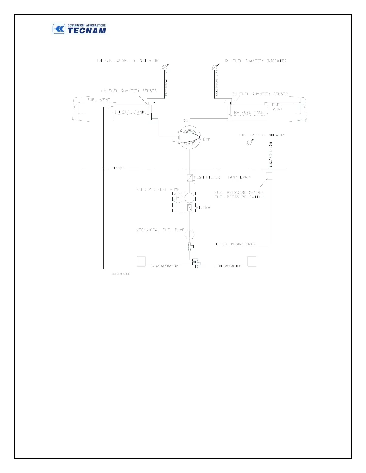
Figure 1-3 Fuel System

Table of Contents

Related product manuals