EasyManua.ls Logo

TECO E710 Series - Page 20

TECO E710 Series
146 pages
Print Icon
To Next Page IconTo Next Page
To Next Page IconTo Next Page
To Previous Page IconTo Previous Page
To Previous Page IconTo Previous Page
Loading...
19
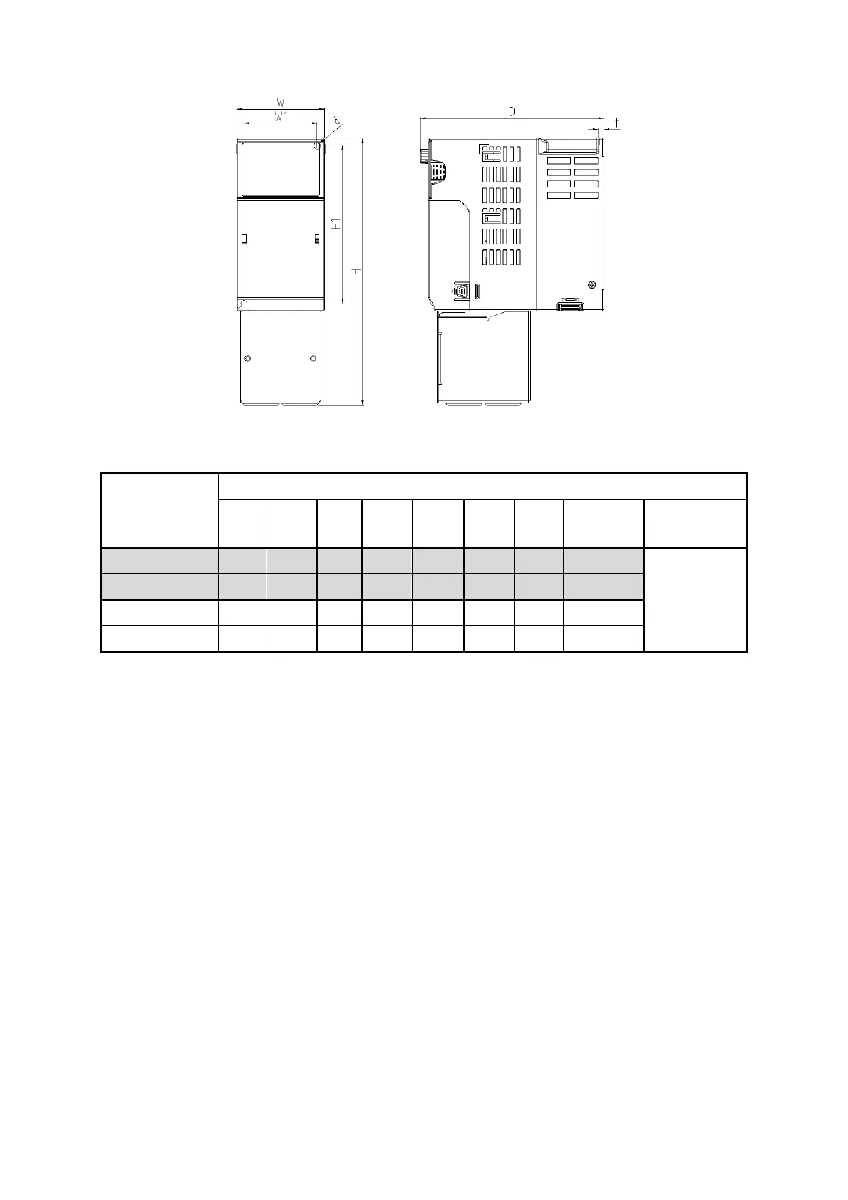
b220V : 2P5~201HP/440V : 401~402HP (NEMA1)
Inverter model
Outline Dimensions (mm)
W H D W1 H1 t d
Gross
Weight(kg)
remark
E710-2P5-HE
72 220 150 60 130.5 5 M4 1.5
E710-201-HE
72 220 150 60 130.5 5 M4
1.5
E710-401-H3E
72 220 150 60 130.5 5 M4
1.5
E710-402-H3E
72 220 150 60 130.5 5 M4
1.5

Related product manuals