EasyManua.ls Logo

TECO E710 Series - Page 27

TECO E710 Series
146 pages
Print Icon
To Next Page IconTo Next Page
To Next Page IconTo Next Page
To Previous Page IconTo Previous Page
To Previous Page IconTo Previous Page
Loading...
26
c440V : 408-410HP
Inverter model
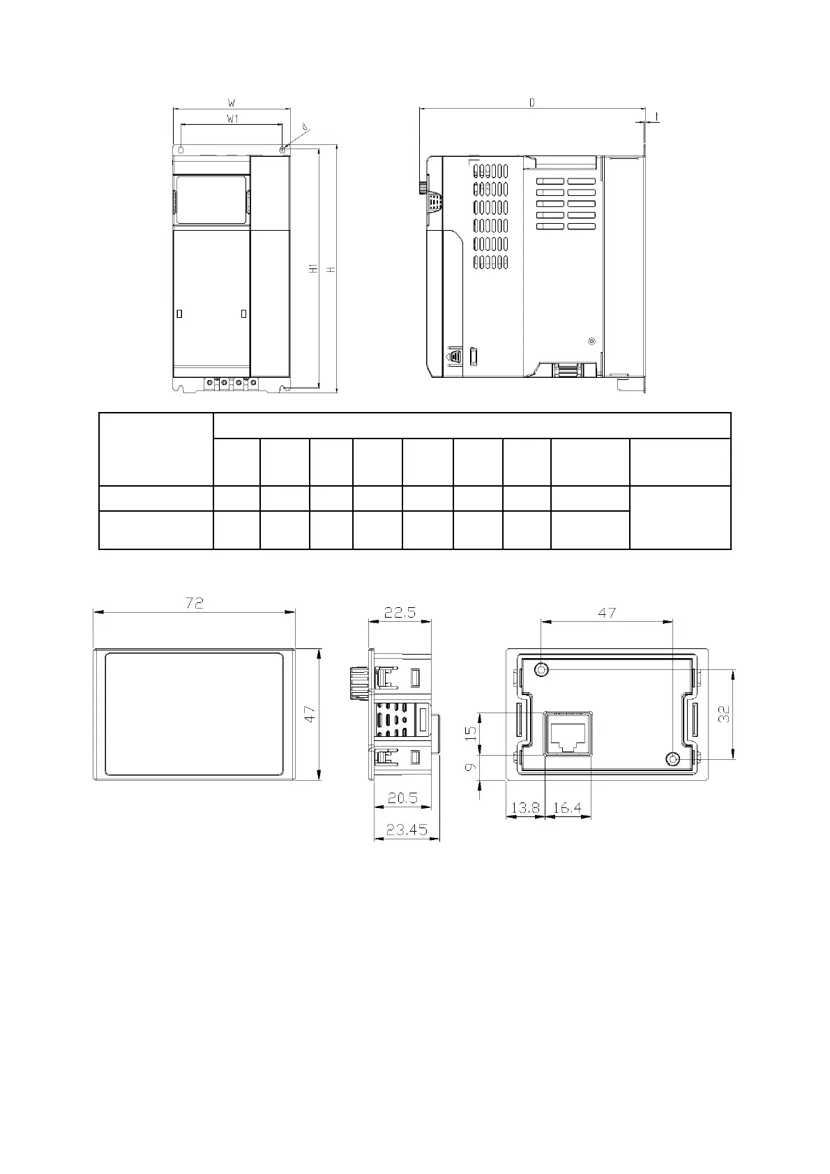
Outline Dimensions (mm)
W H D W1 H1 t d
Gross
Weight(kg)
remark
E710-408-H3SF
109
232 210
94
222.5
1.2 M4
Weight to be
determined
E710-410-H3SF
109
232 210
94
222.5
1.2 M4
2.6.3 KeyPad Outline Dimensions
Installation position
Install the product in an easy to operate environment and avoid exposure to:
¬ to avoid direct sunlight
¬ prevent rain drops of rain or damp environment
¬ to prevent oil mist, the erosion of salt
¬ prevent the corrosive liquid and gas
¬ to prevent dust, lint and metal fines
¬ to prevent electromagnetic interference (welding machine, power machine)
¬ from radioactive material and fuel

Related product manuals