EasyManua.ls Logo

Tempstar F9MAE - Suspended Furnace Support; Platform Furnace Support

Tempstar F9MAE
54 pages
Print Icon
To Next Page IconTo Next Page
To Next Page IconTo Next Page
To Previous Page IconTo Previous Page
To Previous Page IconTo Previous Page
Loading...
INSTALLATION INSTRUCTIONS Gas Furnace: (F/G)9MAE
440 01 4300 02 21
Specifications subject to change without notice.
Figure 23
Furnace, Plenum, and Coil
Assembly on a Combustible Floor
L11F104
EAM4X, END4X, ENW4X
! WARNING
FIRE, EXPLOSION, AND CARBON MONOXIDE POISONING
HAZARD
Failure to follow this warning could result in personal injury, death, or
property damage.
Do not install the furnace on its back or hang furnace with control
compartment facing downward. Safety control operation will be
adversely affected. Never connect returnair ducts to the back of the
furnace.
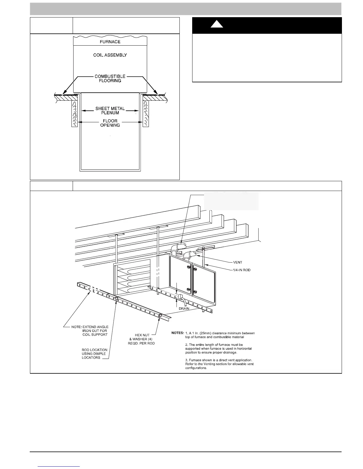
Suspended Furnace Support
The furnace may be supported under the entire length of the
furnace with threaded rod and angle iron. (See Figure 24)
Secure angle iron to bottom of furnace as shown.
Platform Furnace Support
Construct working platform at location where all required
furnace clearances are met. (See Table 1 and Figure 25) For
furnaces with 1in. (25 mm) clearance requirement on side, set
furnace on noncombustible blocks, bricks or angle iron. For
crawlspace installations, if the furnace is not suspended from
the floor joists, the ground underneath furnace must be level
and the furnace set on blocks or bricks.
Figure 24 Suspended Furnace Installation
2in.
(51 mm)
A11155
COMBUSTION AIR PIPE
(SEE VENTING SECTION)
NOTE: Local codes may require a drain pan and condensate trap when a condensing furnace is installed over a finished
ceiling

Related product manuals