EasyManua.ls Logo

Teuco 615 - Ремонтные Работы; Сообщения Системы Диагностики; Удаление Царапин И Обжигов От Сигарет

Teuco 615
Print Icon
To Next Page IconTo Next Page
To Next Page IconTo Next Page
To Previous Page IconTo Previous Page
To Previous Page IconTo Previous Page
Loading...
113
615
RU
РЕМОНТНЫЕ РАБОТЫ
Минибассейн снабжен некоторыми предохранительными устройствами для контроля
правильной работы всей системы.
При возникновении какой-либо неисправности текущие функции останавливаются, а на
дисплей выводятся соответствующие сообщения об ошибке.
СООБЩЕНИЯ СИСТЕМЫ ДИАГНОСТИКИ
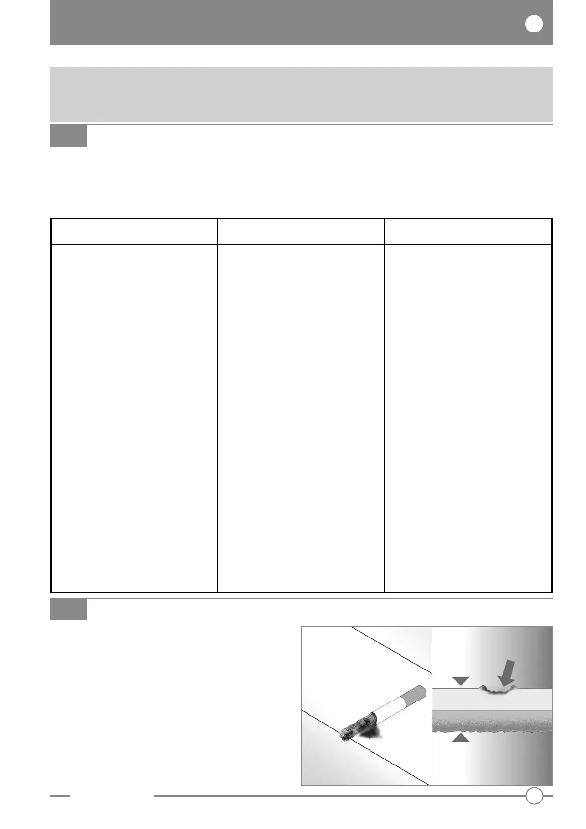
УДАЛЕНИЕ ЦАРАПИН И ОБЖИГОВ ОТ СИГАРЕТЫ
Проверьте, что царапиной или обжигом
повреждена только поверхность акрилово-
го материала.
Устранение таких повреждений должен
осуществлять специализированный персо-
нал.
АКРИЛОВЫЙ
МАТЕРИАЛ
ОРГСТЕКЛО
В случае неисправной или ненормальной работы какой-либо системы минибассейна
обращайтеcь в ближайший уполномоченный Центр Сервисного обслуживания (см.
приложенный перечень).
ПРИЧИНА
Засорение фильтров.
Высокая температура воды в
минибассейне.
Перерыв в электрическом
питании во время подогрева
воды.
Клапана системы закрыты или
фильтр засорен.
Неисправность датчика
температуры.
Низкий урoвeнь вoды.
СПОСОБ УСТРАНЕНИЯ
Чистить фильтры.
Выберите более низкую температуру
и подождите до охлаждения воды.
Если неисправность повторяется, то
обращайтесь в Центр Сервисного
Обслуживания.
Обесточьте минибассейн и
подождите до охлаждения воды
(около 1 часа). Опять включите
электрическое питание. Если
неисправность повторяется, то
обращайтесь в Центр Сервисного
Обслуживания.
Убедитесь, что клапаны открыты;
выполните очистку
фильтров. Если
неисправность повторяется, то
обращайтесь в Центр Сервисного
Обслуживания.
Обращайтесь в Центр Сервисного
Обслуживания.
Дoбaвляйтe вoду. Если
нeиспрaвнoсть снoвa пoявляeтся, тo
oбрaтитeсь в aвтoризoвaнный Цeнтр
Ceрвиснoгo Oбслуживaния.
НЕИСПРАВНОСТЬ
CLE
HL мигающее
- Температура воды в минибас-
сейне превысила 44°C.
HL постоянное
- Температура воды в нагревате-
ле превысила 48°С.
FLO
- Cистема контроля не обнару-
живает протекание воды в
системе рециркуляции.
Prr
H2O

Table of Contents

Related product manuals