EasyManua.ls Logo

Thermo Pride OD6FA072D48R - Page 28

Thermo Pride OD6FA072D48R
76 pages
Print Icon
To Next Page IconTo Next Page
To Next Page IconTo Next Page
To Previous Page IconTo Previous Page
To Previous Page IconTo Previous Page
Loading...
25
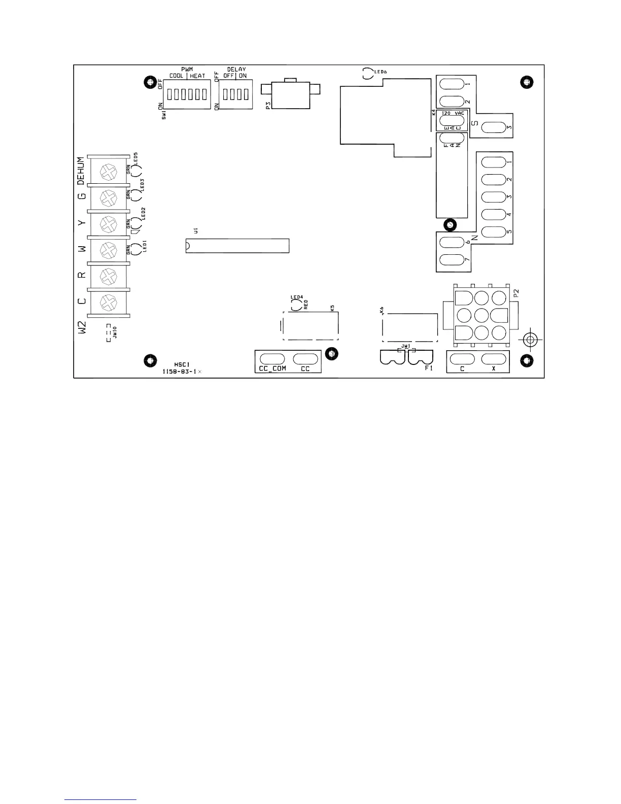
Figure 15: The Fan Control Module
NOTICE: It is important to confirm that the operating voltage of the humidifier or EAC being
installed matches the output of this control. If not, a field supplied relay or transformer may be
necessary to provide the proper control and supply voltage for the accessory being installed.
Refer to the manufacturer’s instructions for the humidifier or EAC for additional information.
Thermostat Anticipator Setting:
Proper control of the indoor air temperature can only be achieved if the thermostat is calibrated to the
heating and/or cooling cycle. Calibration will help to produce a more constant indoor temperature by
adjusting the length of the heating/cooling cycle to fit the application. A vital consideration of this
calibration is related to the thermostat heat anticipator.
The proper thermostat heat anticipator setting is 0.1 ampere. To increase the length of the cycle, increase
the setting of the heat scale; to decrease the length of the cycle, decrease the setting of the heat scale.
Anticipators for the cooling operation are generally pre-set by the thermostat manufacturer and require no
adjustment.
Anticipators for the heating operation are of two types, pre-set and adjustable. Those that are pre-set will
not have an adjustment scale and are generally marked accordingly. Thermostat models having a scale
as shown in Figure 16 on the next page, must be adjusted to each application.

Related product manuals