EasyManua.ls Logo

TidalFit EP-15 - Page 24

Default Icon
81 pages
Print Icon
To Next Page IconTo Next Page
To Next Page IconTo Next Page
To Previous Page IconTo Previous Page
To Previous Page IconTo Previous Page
Loading...
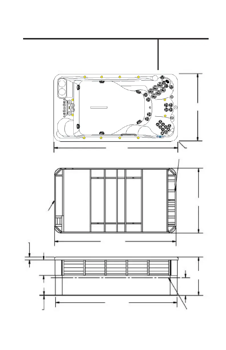
TIDALFIT SEMI IN-GROUND EP-12/EP-14/
EP-15 ARCHITECTURAL SPECIFICATIONS
Dry Weight ..................2250 lbs.
Filled Weight ..............14261 lbs.
Dimensions.................168 in. x 91 in. x 52 in.
Volume....
.....................1680 Gallons
.
91.000
168.000
R10.000
88.000
PUMP SIDE
CONTROL SIDE
164.885
4.000
0.500
24.000
21.000
PLAN VIEW OF FOOT PRINT
18
52.000
164.885
SEMI
IN-GROUND
EP-14
CEMENT LINE

Table of Contents

Other manuals for TidalFit EP-15

Related product manuals