EasyManua.ls Logo

TidalFit EP-15 - Tidalfit Semi In-Ground Arch Specs (EP-12;EP-14;EP-15)

Default Icon
81 pages
Print Icon
To Next Page IconTo Next Page
To Next Page IconTo Next Page
To Previous Page IconTo Previous Page
To Previous Page IconTo Previous Page
Loading...
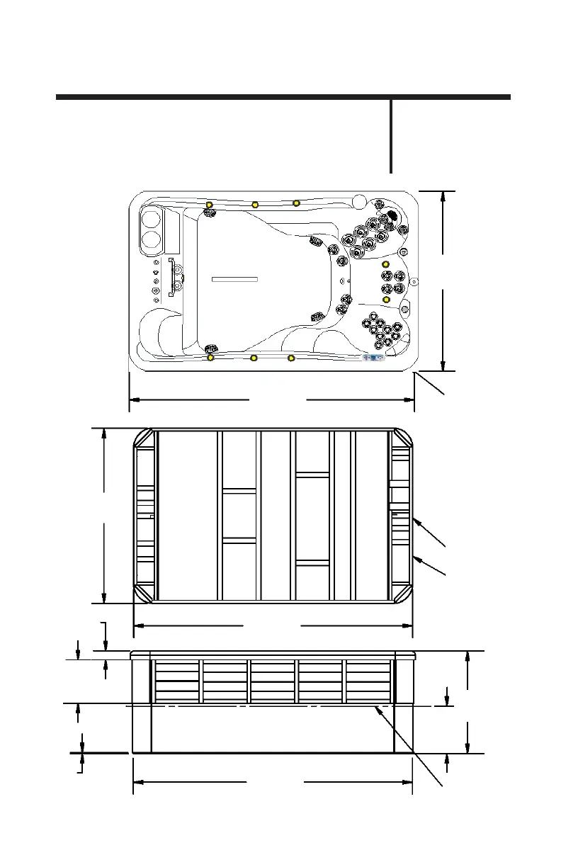
TIDALFIT SEMI IN-GROUND EP-12/EP-14/
EP-15 ARCHITECTURAL SPECIFICATIONS
Dry Weight ..................2000 lbs.
Filled Weight
...............12842 lbs.
Dimensions.................144 in. x 91 in. x 52 in.
Volume......
...................1300 Gallons
91.000
R10.000
144.000
CONTROL
SIDE
PUMP SIDE
140.885
88.000
4.500
0.500
140.885
52.000
17
22.000
24.000
SEMI
IN-GROUND
EP-12
CEMENT LINE

Table of Contents

Other manuals for TidalFit EP-15

Related product manuals