EasyManua.ls Logo

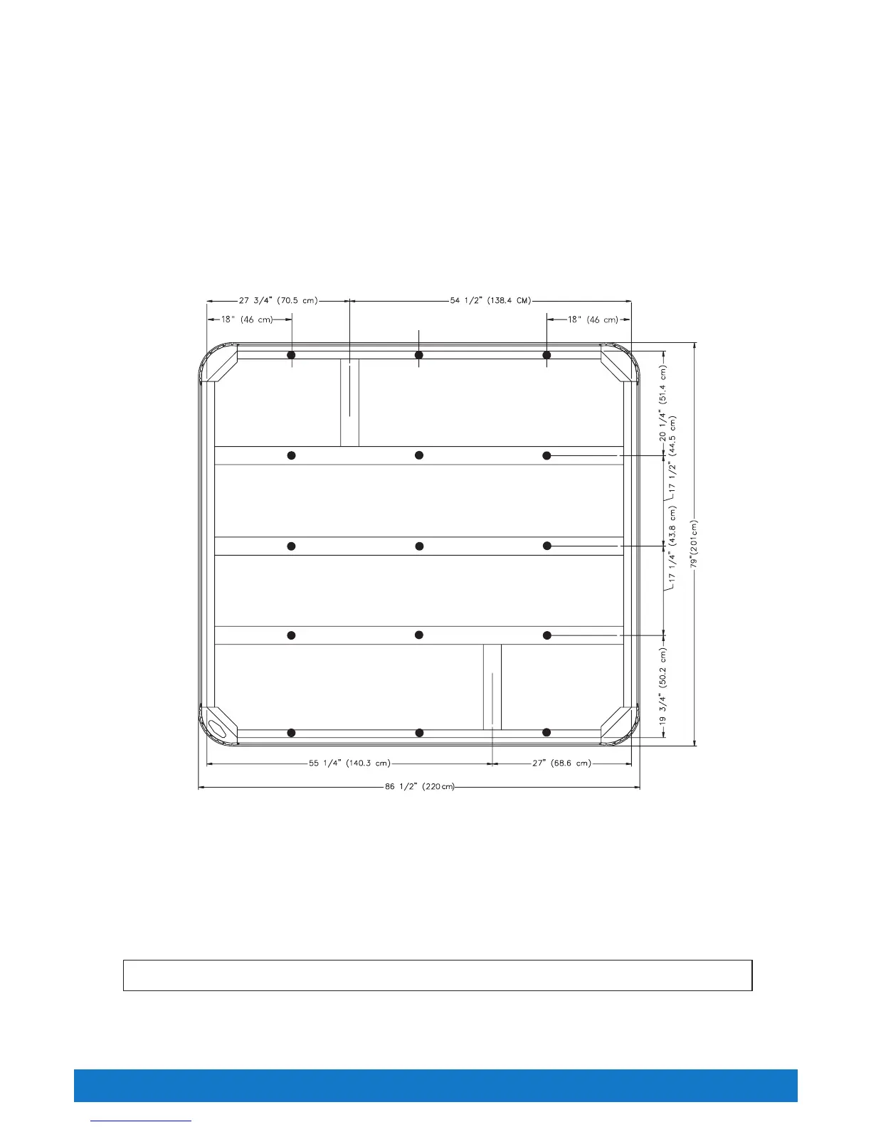
Tiger River Sumatran - Bengal (Model M; MM) Leveling Points

Default Icon
52 pages
Print Icon
To Next Page IconTo Next Page
To Next Page IconTo Next Page
To Previous Page IconTo Previous Page
To Previous Page IconTo Previous Page
Loading...
Page 8
BENGAL
®
(MODEL M / MM)
LEVELING POINTS
NOTE: Alldimensionsareapproximate;measure
your spa before making critical design or pathway decisions.
•15levelingpoints(placeshimsapprox.18”infromedge,thencentermiddleshims)
DOOR SIDE
CENTER MIDDLE SHIMS
UPSIDE DOWN VIEW OF SPA
Installation Instructions

Table of Contents

Other manuals for Tiger River Sumatran

Related product manuals