EasyManua.ls Logo

Titon TP408HMBE - Page 23

Titon TP408HMBE
32 pages
Print Icon
To Next Page IconTo Next Page
To Next Page IconTo Next Page
To Previous Page IconTo Previous Page
To Previous Page IconTo Previous Page
Loading...
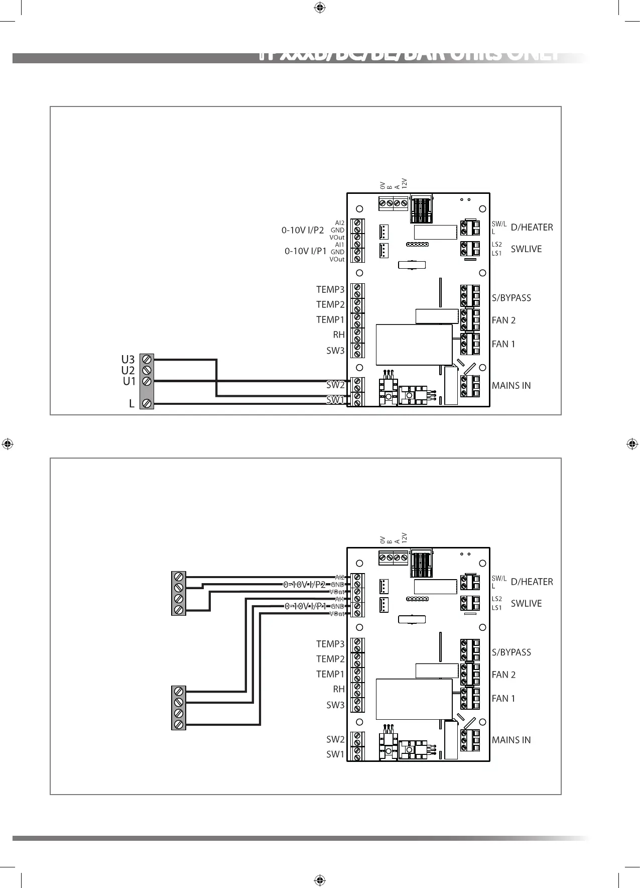
TPxxxB/BC/BE/BAR Units ONLY
0-10V Sensor connections Ref EE161
If sensors are tted with switches ensure they are switched to VDC
Vin
GND
AO1
Vin
GND
AO1
Room Sensor 1
(default TP542 RSH
Room Humidity Sensor)
Room Sensor 2
(default TP541 RSC Room
CO Sensor)
Additional Options:
TP540 RSQ Room Air Quality Sensor
TP543 RST Room Temperature Sensor
VOut =24Vdc
Combined sensor load
must not exceed 4W
3-Way rotary switch Ref EE162
Switch Positions TP508 Three Position Rotary Switch
1 - Setback Speed
2 - Continuous Speed
3 - Boost Speed
For this conguration to function correctly;
S1-1 Needs to be set to a Kitchen or Wet Room Boost switch,
S1-2 Needs to be set to a Setback switch.
23

Other manuals for Titon TP408HMBE

Related product manuals