EasyManua.ls Logo

Titon TP408HMBE - External Sensors

Titon TP408HMBE
32 pages
Print Icon
To Next Page IconTo Next Page
To Next Page IconTo Next Page
To Previous Page IconTo Previous Page
To Previous Page IconTo Previous Page
Loading...
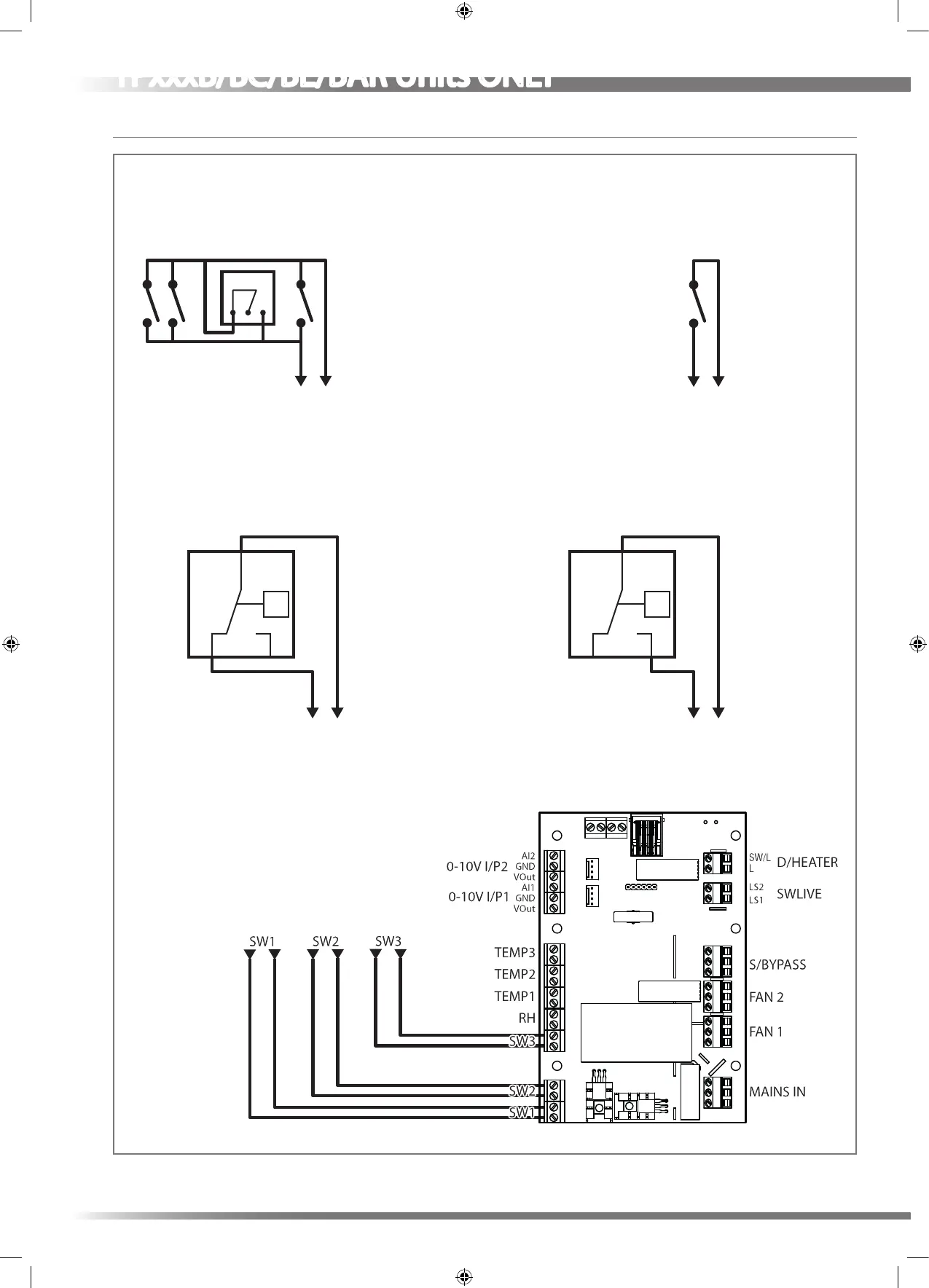
TPxxxB/BC/BE/BAR Units ONLY
External Sensors
Connections Ref EE165
Any of these switch arrangements can be used in
switch inputs SW1 to SW3 depending on their
conguration and the type of MVHR.
Volt-free control of SUMMERboost® using room
thermostat. TP509 Room Thermostat
Volt-free activation of Summer Mode using room
thermostat. TP509 Room Thermostat
Volt-free boost switching of MVHR using single-
pole switches TP502, TP503, TP507 and / or
TP500/TP501 Humidistat.
There is a maximum of 10 single pole switches or
Humidistats that can be used.
TP506 Latching Summer Mode switch /
TP522 Latching SUMMERboost® switch.
1 2 3
T
L
Y1 Y2
T
L
Y1 Y2
22

Other manuals for Titon TP408HMBE

Related product manuals