EasyManua.ls Logo

Toa VX-3000DS CE - Page 22

Toa VX-3000DS CE
36 pages
Print Icon
To Next Page IconTo Next Page
To Next Page IconTo Next Page
To Previous Page IconTo Previous Page
To Previous Page IconTo Previous Page
Loading...
22
5.4.2. DS LINK terminal connections

VX-3016F. The figure below shows a connection example when the VX-3000DS units are connected to the VX-
3004F. This connection also applies to the VX-3008F and VX-3016F.
TEMPERATURE
SENSOR
24V(16-25V)
POWER OUT
MAX 0.3A
IN
OUT
DS LINK
DS LINK
INOUT
VX-3000DS
VX-3004F
230 V AC
220 V AC
50/60 Hz
Cat. 5 STP
Insulation sleeve
Contact section
Insulation sleeve
Contact section
a
l
2
a
1
a
2
l
1
l
2
l
1
bb
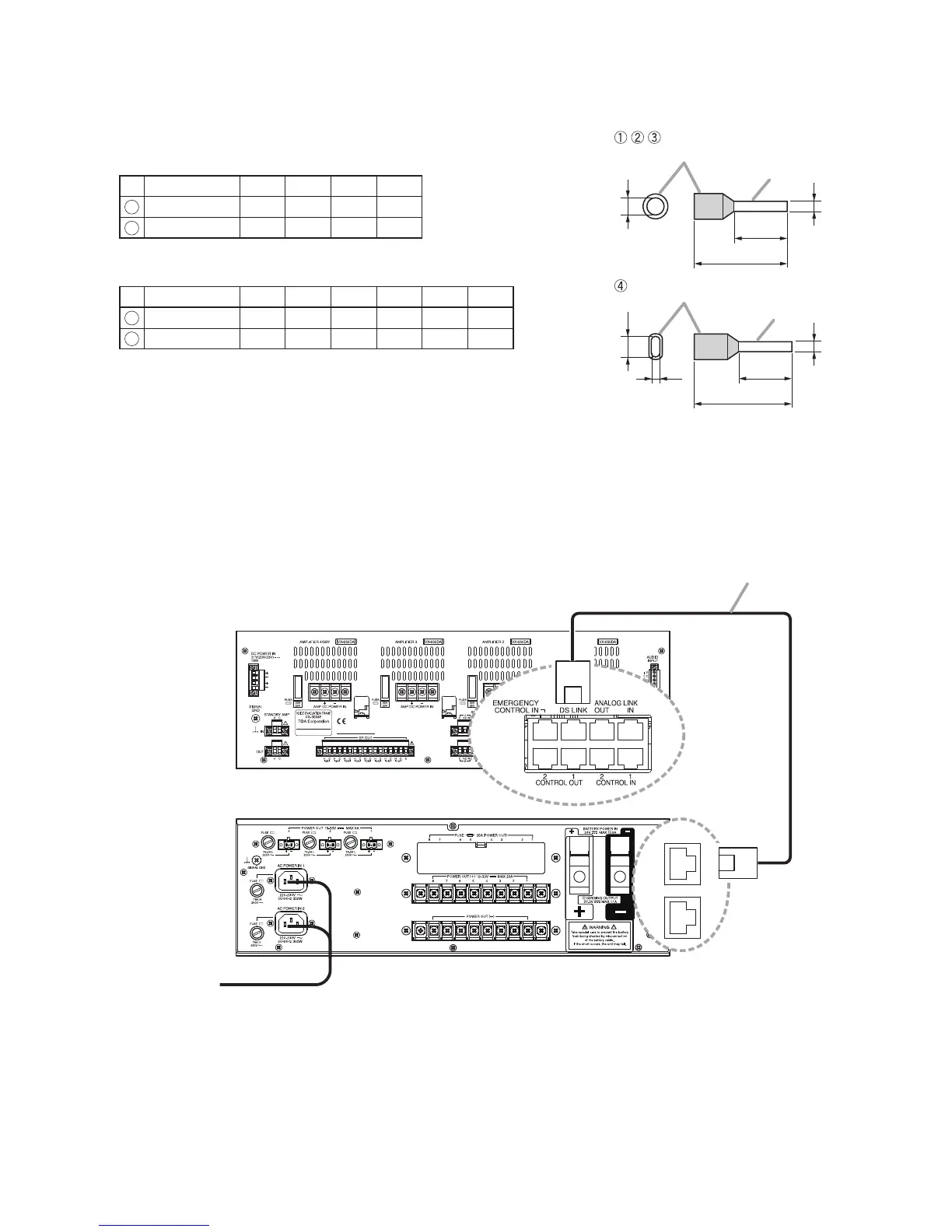
[Cable termination]
When connecting 2 cables or a shielded cable to a single terminal, use a ferrule terminal with an insulation
sleeve to crimp the cables because such cable conductors could become loose.
Recommended ferrule terminals for signal cables


Model Number a b l1 l2
1 DN00308D 1.9 0.8 12 8
2 DN00508D 2.6 1 14 8
Recommended ferrule terminals for power supply cables


Model Number a a1 a2 b l1 l2
3 DN01508D
3.5
- -
1.7 14 8
4 DN01508B
-
6.6 3.6 2.3 16 8
