EasyManua.ls Logo

Toro 323 - Schematics

Toro 323
44 pages
Print Icon
To Next Page IconTo Next Page
To Next Page IconTo Next Page
To Previous Page IconTo Previous Page
To Previous Page IconTo Previous Page
Loading...
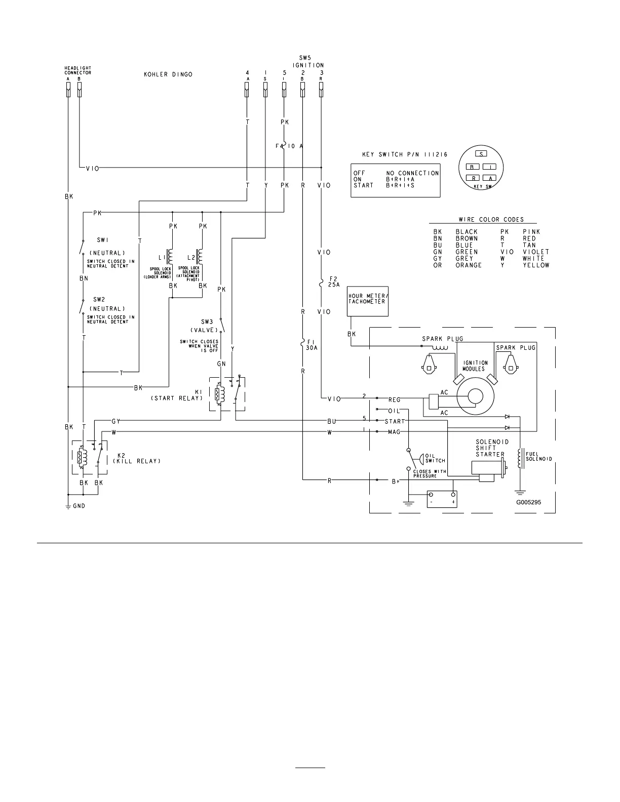
Schematics
g005295
ElectricalSchematic(Rev.A)
38

Table of Contents

Related product manuals