EasyManua.ls Logo

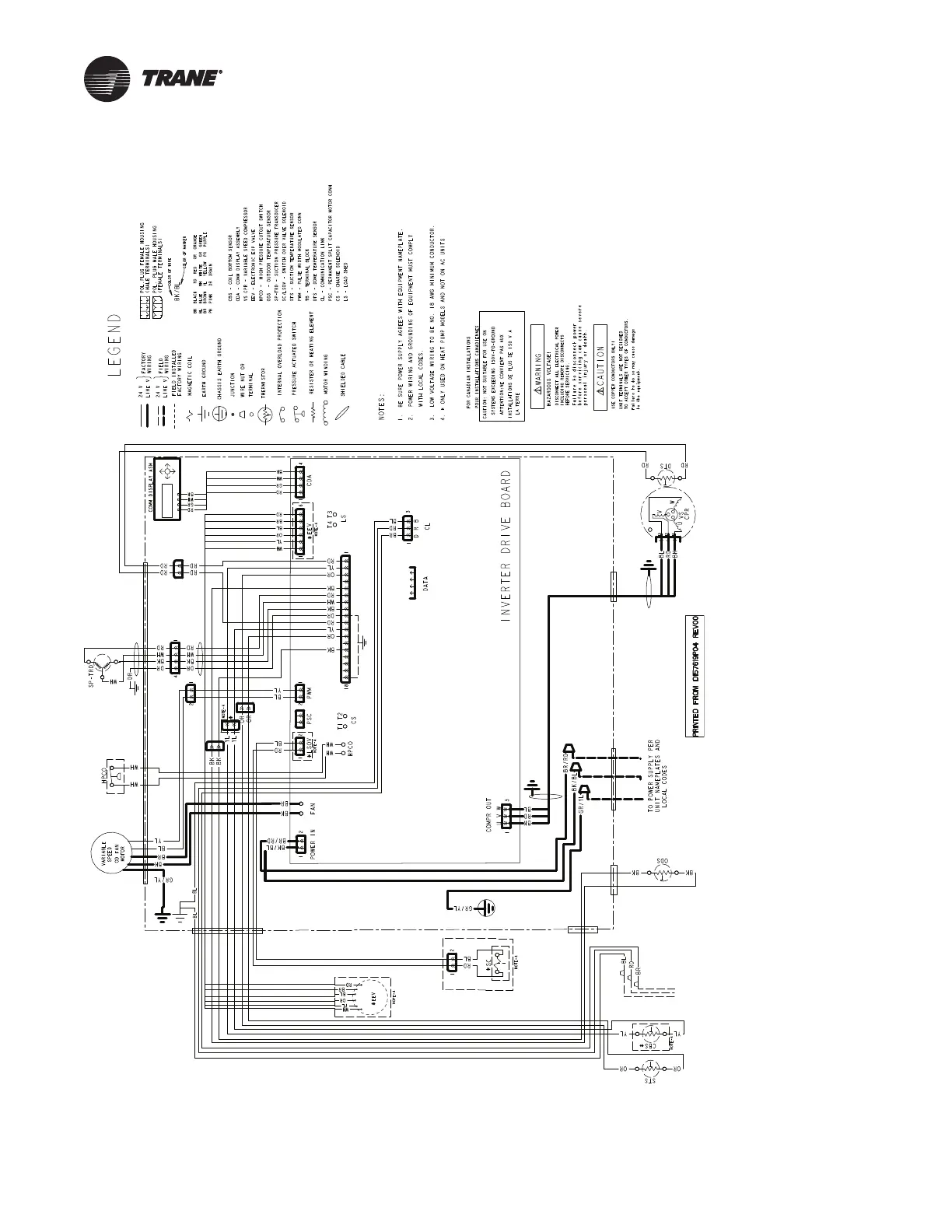
Trane Technologies 4TTV8060A1000B - Wiring Diagram and Notes; Wiring Diagram and Installation Notes

Default Icon
76 pages
Print Icon
To Next Page IconTo Next Page
To Next Page IconTo Next Page
To Previous Page IconTo Previous Page
To Previous Page IconTo Previous Page
Loading...
4T-V8-SF-1M-EN
11
Wiring D157619P04
231
13
2

Related product manuals