EasyManua.ls Logo

Trane Technologies 4TTV8060A1000B - Page 37

Default Icon
76 pages
Print Icon
To Next Page IconTo Next Page
To Next Page IconTo Next Page
To Previous Page IconTo Previous Page
To Previous Page IconTo Previous Page
Loading...
4T-V8-SF-1M-EN
37
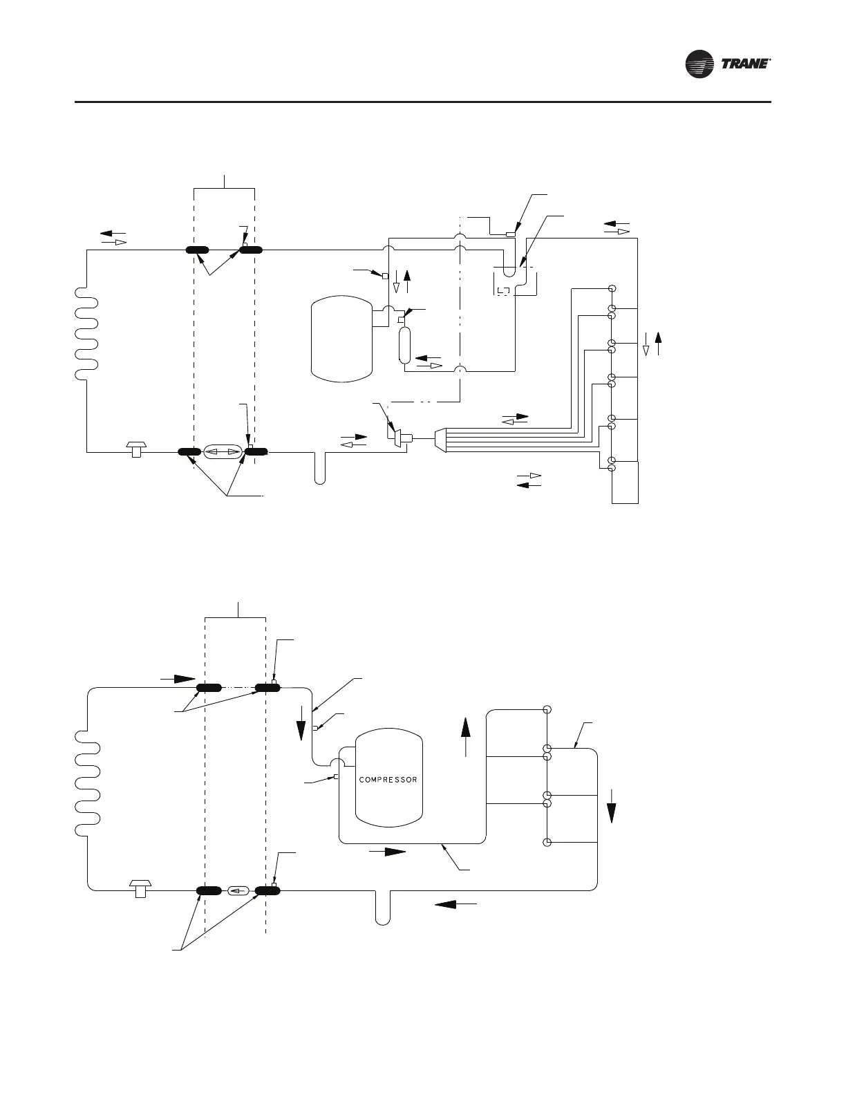
Figure 15. 5 Ton HP (060 Models)
INDOOR
SECTION
OUTDOOR
SECTION
FIELD INSTALLED
INTER-CONNECTING
TUBING
FIELD
CONNECTION
INDICATES DIRECTION OF
REFRIGERATION FLOW
COOLING
HEATING
PRINTED FROM DRAWING D158073rev01
EEV GAS
SENSOR
SWITCHOVER
VALVE
1/4 FLARE
PRESSURE
TAP
FIELD
CONNECTIONS
PRESSURE
TRANSDUCER
COMPRESSOR
HPCO
MUFFLER
SOV
COIL
IN
D
O
OR
COIL
1/4 FLARE
PRESSURE
TAP
EEV
OR
TXV
BI-FLOW
DRIER
INTERNALLY CHECKED
ELECTRONIC EXPANSION
VALVE
DRIVE
COOLING
LOOP
LIQUID
LINE
DISTRIBUTOR
OUTDOOR
COIL
Figure 16. 2 TON A/C (024 Models)
INDOOR
SECTION
OUTDOOR
SECTION
FIELD INSTALLED
INTER-CONNECTING
TUBING
REFRIGERANT FLOW
1/4 FLARE
PRESSURE
TAP
SUCTION
LINE
PRESSURE
TRANSDUCER
OUTDOOR
COIL
FIELD
CONNECTION
INDOOR
COIL
HPCO
DRIER
1/4 FLARE
PRESSURE
TAP
EXPANSION
VALVE
FIELD
CONNECTION
LIQUID LINE
DRIVE
COOLING
LOOP
REFRIGERANT FLOW
DISCHARGE
LINE
PRINTED FROM DRAWING D158077
RReeffrriiggeerraattiioonnCCiirrccuuiittssffoorrHHeeaattiinnggaannddCCoooolliinngg

Related product manuals