EasyManua.ls Logo

Trane Technologies Precedent TZJ150A - Page 45

Trane Technologies Precedent TZJ150A
52 pages
Print Icon
To Next Page IconTo Next Page
To Next Page IconTo Next Page
To Previous Page IconTo Previous Page
To Previous Page IconTo Previous Page
Loading...
RT-SVX076A-EN
45
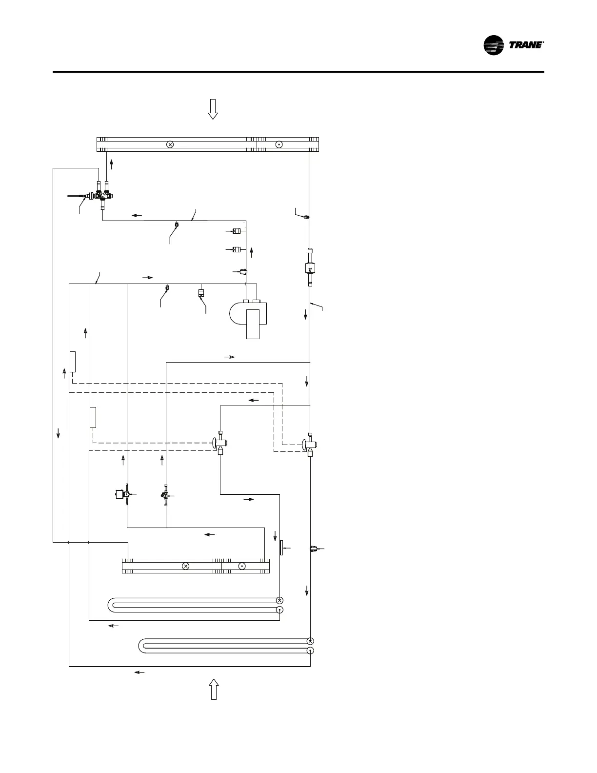
Figure 27. Piping diagram – 12.5 to 15 tons ultra high efficiency - hot gas reheat (TZJ150–180)
COMPRESSOR
1A
S
D
SERVICE
VALVE
SU
C
TI
ON
LINE
LIQUID LINE
FILTER DRIER
TXV #1
EQUALIZING LINE
SERVICE
VALVE
OUTDOOR COIL
LOW
PRESSURE
CONTROL
DISCHARGE
LINE
THERMOSTAT
AIR
AIR
INDOOR COIL #1
INDOOR COIL #2
TXV BULB #2
TXV BULB #1
TXV #2
EQUALIZING LINE
SERVICE
VALVE
REHEAT
COIL
DISCHARGE LINE
CHECK
VALVE
SOLENOID
VALVE
BLEED TUBE
MTW-9S VALVE
B
A
FROSTAT
THERMISTOR
HIGH
PRESSURE
CONTROL
HIGH
PRESSURE
CONTROL
Piping Diagrams

Related product manuals