EasyManua.ls Logo

Trane Technologies Precedent TZJ150A - Piping Diagrams

Trane Technologies Precedent TZJ150A
52 pages
Print Icon
To Next Page IconTo Next Page
To Next Page IconTo Next Page
To Previous Page IconTo Previous Page
To Previous Page IconTo Previous Page
Loading...
44
RT-SVX076A-EN
Piping Diagrams
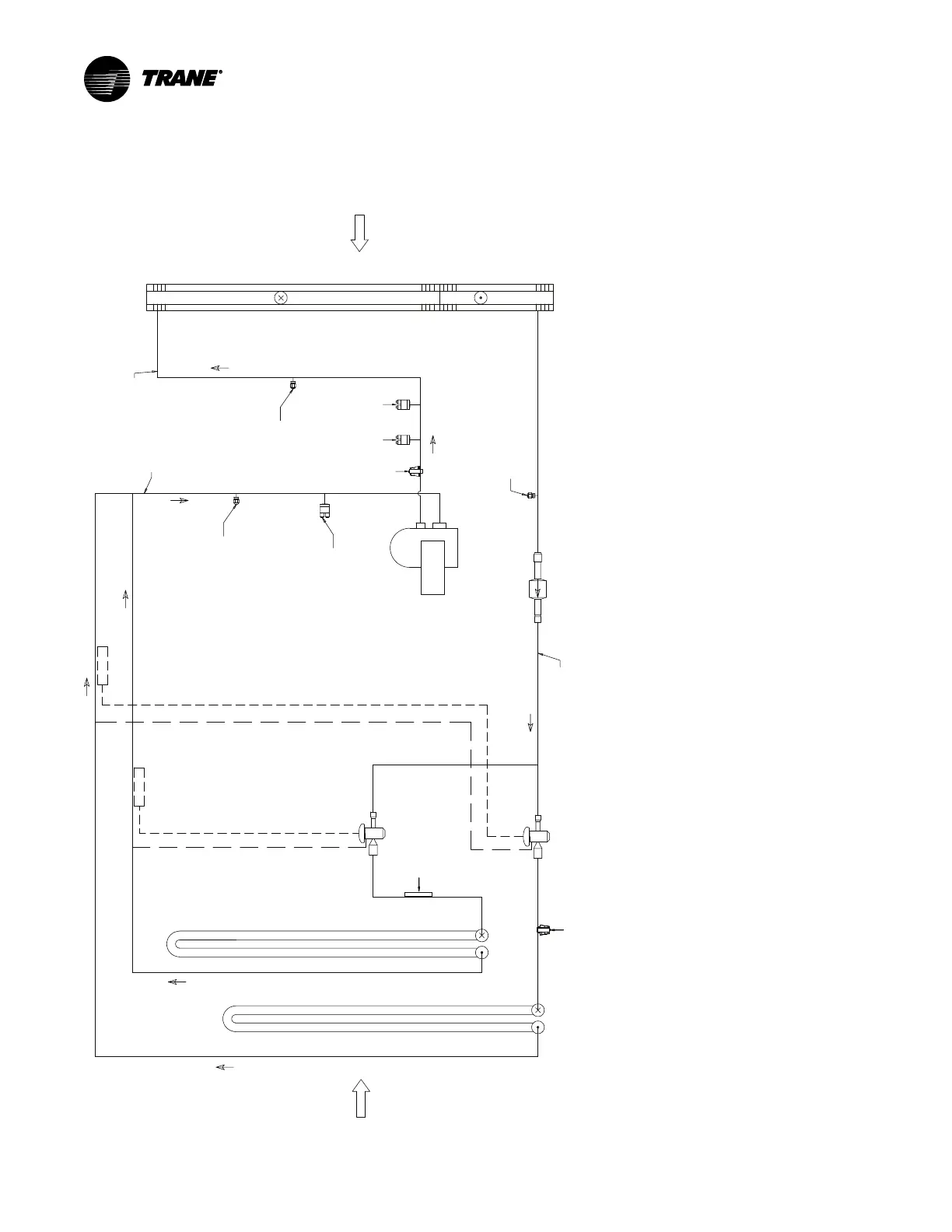
Figure 26. Piping diagram 12.5 to 15 tons ultra high efficiency (TZJ150–180)
COMPRESSOR
1A
S
D
SERVICE
VALVE
SU
C
T
ION
LINE
LIQUID LINE
FILTER DRIER
TXV #1
EQUALIZING LINE
SERVICE
VALVE
OUTDOOR COIL
LOW
PRESSURE
CONTROL
DISCHARGE
LINE
DISCHARGE
LINE
THERMOSTAT
AIR
AIR
INDOOR COIL #1
INDOOR COIL #2
TXV BULB #2
TXV BULB #1
TXV #2
EQUALIZING LINE
SERVICE
VALVE
HIGH
PRESSURE
CONTROL
HIGH
PRESSURE
CONTROL
FROSTAT
THERMISTOR

Related product manuals