EasyManua.ls Logo

Trane Technologies VariTrane VCCF - Control Box Wiring

Trane Technologies VariTrane VCCF
64 pages
Print Icon
To Next Page IconTo Next Page
To Next Page IconTo Next Page
To Previous Page IconTo Previous Page
To Previous Page IconTo Previous Page
Loading...
VAV-SVX08U-EN
53
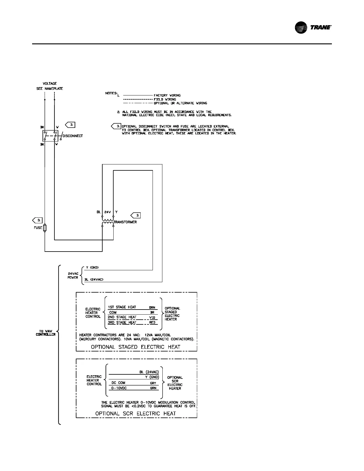
Control Box Wiring
Figure 39. Single duct control box
WWiirriinngg DDiiaaggrraammss

Related product manuals