EasyManua.ls Logo

Trane A5HP4 - Section 18. Wiring Diagrams

Trane A5HP4
30 pages
Print Icon
To Next Page IconTo Next Page
To Next Page IconTo Next Page
To Previous Page IconTo Previous Page
To Previous Page IconTo Previous Page
Loading...
88-A5HP4001-1A-EN 23
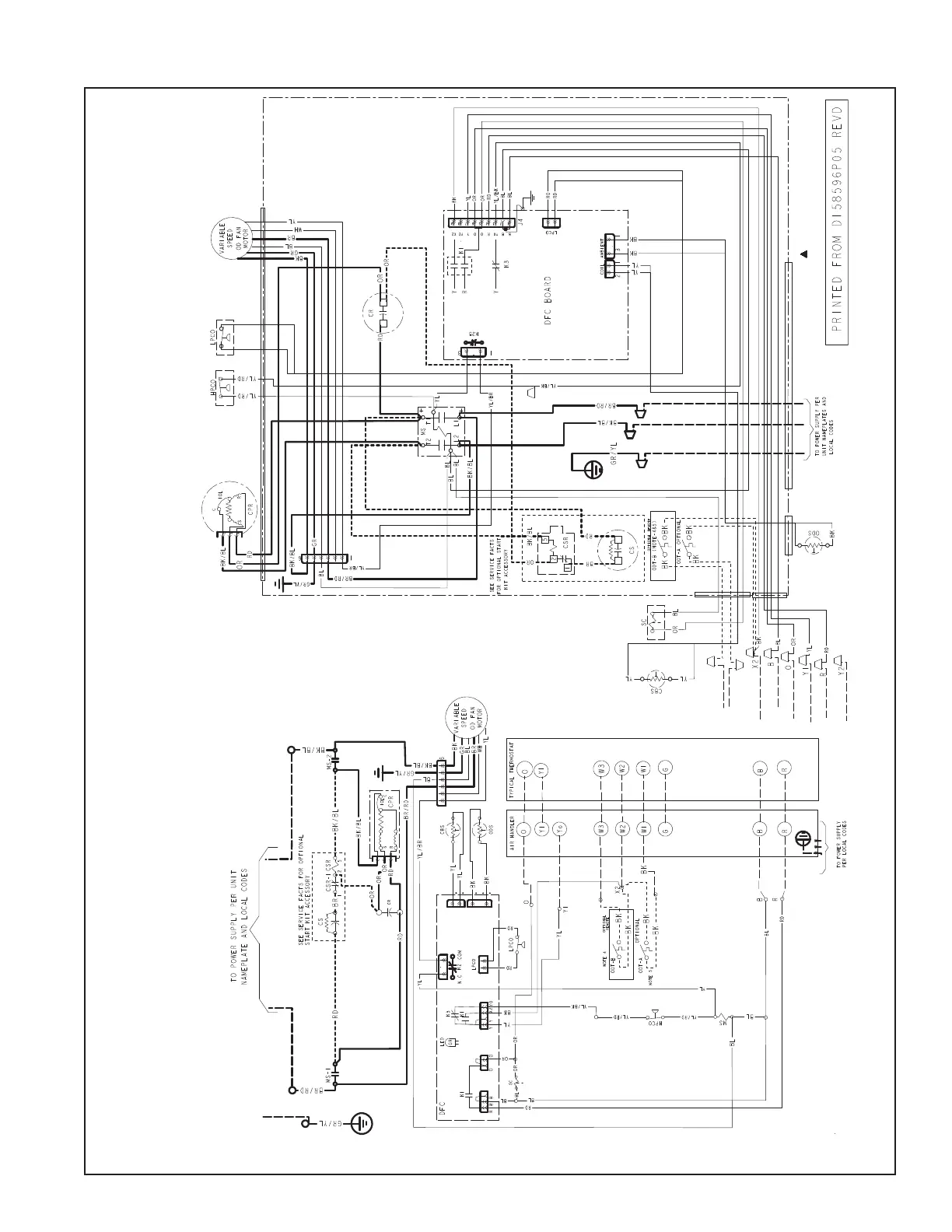
Section 18. Wiring Diagrams
018A, 024A, 030A & 036A Models

Related product manuals