EasyManua.ls Logo

Trane A951X040BD3SAC - Outline Drawing

Trane A951X040BD3SAC
108 pages
Print Icon
To Next Page IconTo Next Page
To Next Page IconTo Next Page
To Previous Page IconTo Previous Page
To Previous Page IconTo Previous Page
Loading...
16
A951X-SVX001-1D-EN
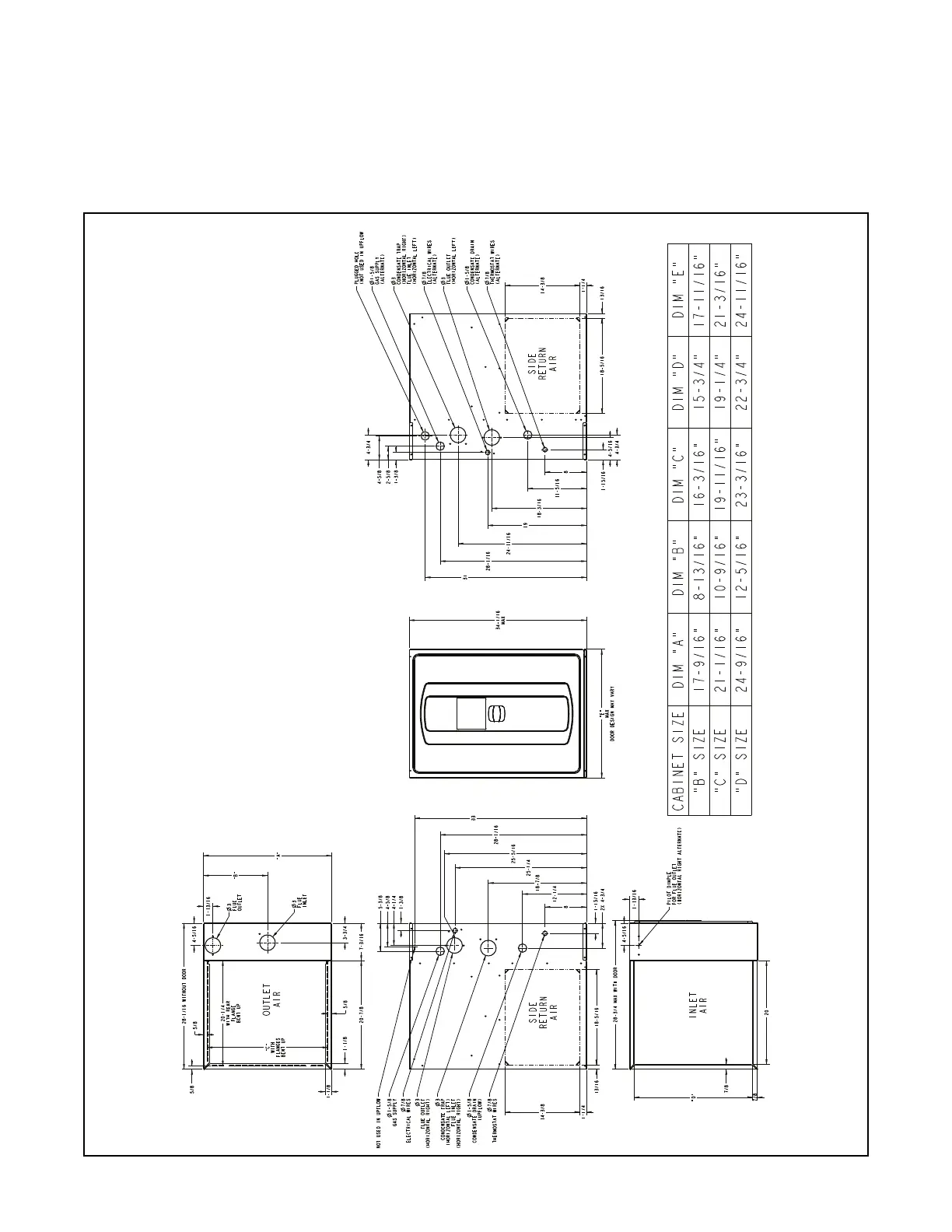
Outline Drawing
Table 2. 17.5”, 21” and 24.5” Upflow Cabinets

Table of Contents