EasyManua.ls Logo

Trane CGAD020 - Page 48

Trane CGAD020
85 pages
Print Icon
To Next Page IconTo Next Page
To Next Page IconTo Next Page
To Previous Page IconTo Previous Page
To Previous Page IconTo Previous Page
Loading...
CGAD-SVN02C-EN48
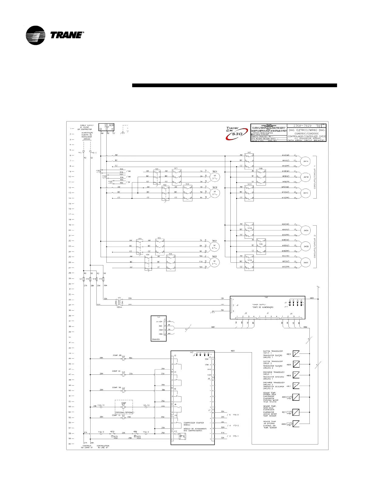
Wiring
Diagram
Fig. 29 - Power and command wiring diagram CGAD 050C / CGAD060C - Sheet 1/2