EasyManua.ls Logo

Trane CGAD050C - CGAD 080 C;090 C Dimensions

Trane CGAD050C
33 pages
Print Icon
To Next Page IconTo Next Page
To Next Page IconTo Next Page
To Previous Page IconTo Previous Page
To Previous Page IconTo Previous Page
Loading...
CG-PRC002A-EN
25
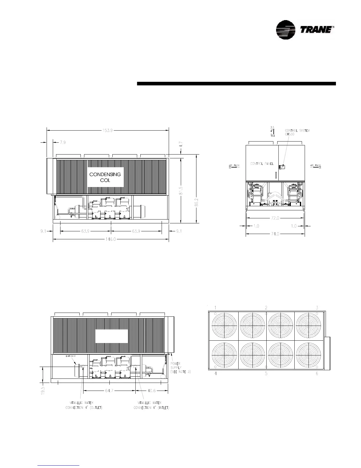
CGAD 080C / 090C
Dimensional
Data
NOTES:
1 - FIXING POINTS FOR VIBRATION INSULATORS (6 X.11,5-mm DIAM HOLES)
2 - VIBRATION INSULATORS ARE NOT SUPPLIED WITH THE EQUIPMENT.
3 - UNITS NOT SPECIFIED: mm
Fig. 17 - Unit Dimensions - CGAD 080C / 090C
Fig. 18 - Top View of Fans
COMPRESSORS
CONDENSING
COL
COMPRESSORS

Related product manuals