EasyManua.ls Logo

Trane CVHE - Pre-Installation Requirements; ASHRAE Standard 15 Compliance; Unit Shipment Inspection; Installation Requirements and Contractor Responsibilities

Trane CVHE
60 pages
Print Icon
To Next Page IconTo Next Page
To Next Page IconTo Next Page
To Previous Page IconTo Previous Page
To Previous Page IconTo Previous Page
Loading...
Pre-Installation
10 AFDH-SVN004C-EN
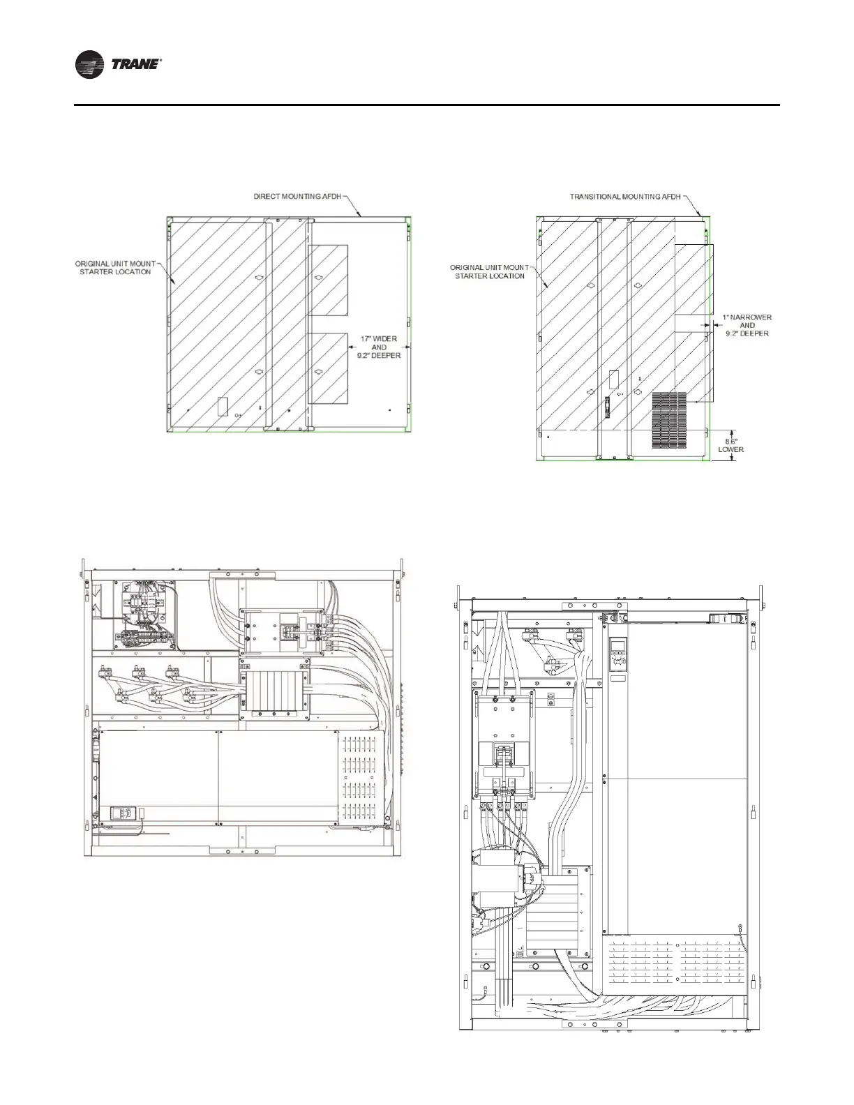
Direct Mount. Transition Mount.
Figure 2. Comparison of direct-mounted AFDH to
typical unit-mounted starter
Figure 3. Open direct mount AFDH internal view
㼃㼅㻱㻌㻰㻱㻸㼀㻭㻌㻿㼀㻭㻾㼀㻱㻾
㻢㻜䇿㻌㼀㻌㼄㻌㻟㻤䇿㻌㼃㻌㼄㻌㻝㻠䇿㻌㻰
㼃㼅㻱㻌㻰㻱㻸㼀㻭㻌㻿㼀㻭㻾㼀㻱㻾㻌㼣㼕㼠㼔㻌㻼㻲㻯㻯㼟
㻢㻜䇿㻌㼀㻌㼄㻌㻠㻥䇿㻌㼃㻌㼄㻌㻝㻠䇿㻌㻰
㻰㻵㻾㻱㻯㼀㻌㻹㻻㼁㻺㼀㻵㻺㻳㻌㻭㻲㻰㻴
㻢㻜䇿㻌㼀㻌㼄㻌㻢㻢䇿㻌㼃㻌㼄㻌㻞㻟㻚㻞䇿㻌㻰
Figure 4. Comparison of transition-mounted AFDH to
typical unit-mounted starter
Figure 5. Open transition mount AFDH internal view
㼃㼅㻱㻌㻰㻱㻸㼀㻭㻌㻿㼀㻭㻾㼀㻱㻾
㻢㻜䇿㻌㼀㻌㼄㻌㻟㻤䇿㻌㼃㻌㼄㻌㻝㻠䇿㻌㻰
㼃㼅㻱㻌㻰㻱㻸㼀㻭㻌㻿㼀㻭㻾㼀㻱㻾㻌㼣㼕㼠㼔㻌㻼㻲㻯㻯㼟
㻢㻜䇿㻌㼀㻌㼄㻌㻠㻥䇿㻌㼃㻌㼄㻌㻝㻠䇿㻌㻰
㼀㻾㻭㻺㻿㻵㼀㻵㻻㻺㻭㻸㻌㻹㻻㼁㻺㼀㻵㻺㻳㻌㻭㻲㻰㻴
㻢㻤㻚㻢䇿㻌㼀㻌㼄㻌㻠㻤䇿㻌㼃㻌㼄㻌㻞㻟㻚㻞䇿㻌㻰

Table of Contents

Other manuals for Trane CVHE

Related product manuals