EasyManua.ls Logo

Trane CVHE - Page 11

Trane CVHE
60 pages
Print Icon
To Next Page IconTo Next Page
To Next Page IconTo Next Page
To Previous Page IconTo Previous Page
To Previous Page IconTo Previous Page
Loading...
Pre-Installation
AFDH-SVN004C-EN 11
LiquidFlo.
Important:
Verify
electrical disconnect switch installation height
meets requirements of current NEC and/or local
codes.Typical requirement is that switch can be no
higher than 72 inches above the surface of the operator
area floor or platform. Check the potential mounted
height of the AFDH disconnect switch specially if the
chiller has large shells or mounted on structural steel.
Other
factors that affect the space required to
successfully install a stand-mounted AFDH drive
include the clearance distances specified by the local
electrical codes. Typical code regulations require an
average of 36 inches of clearance from the panel to
nonconducting
surfaces and 47 inches to a conducting
surface.
Check and confirm that when installed, the
drive clearances will conform to all local codes. Do not
forget to account for cabinet door swing clearances.
Note: Refer
to manual section “AFDH Drive Package
Specifications,”for the dimensions and weights of
all models of AFDH drives.
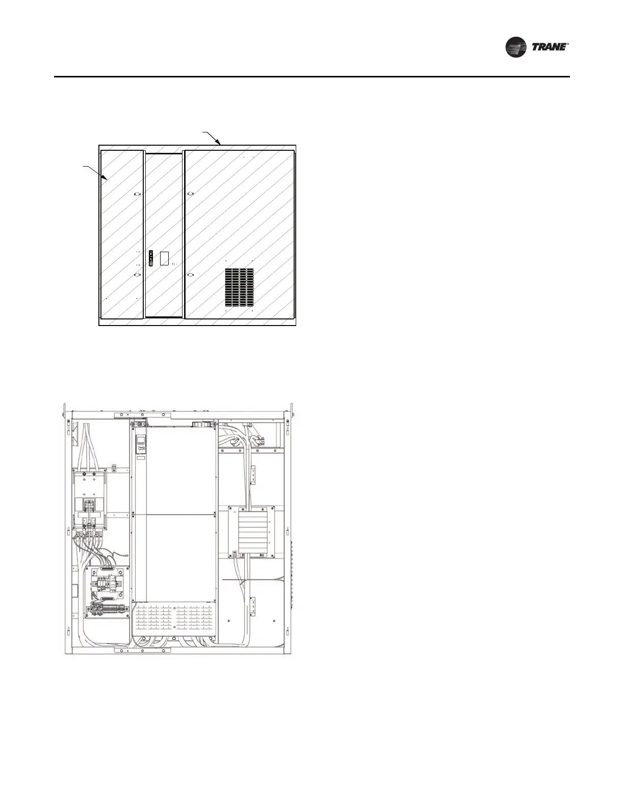
Figure 6. Comparison of LiquiFlo AFDH to AFDB
Figure 7. Open LiquiFlo AFDH internal view
AFDB STARTER
68.8" T X 64" W X 14" D
LF MOUNTING AFDH
68.8" T X 64" W X 23.2" D
9.2" DEEPER
THAN AFDB
LF MOUNTING AFDH
AFDB

Table of Contents

Other manuals for Trane CVHE

Related product manuals